Bestemmingsplan: Noordwest, deelgebied I


30 januari 2003
Toelichting
Behorende bij het
bestemmingsplan
Noord-west, deelgebied 1
2003
INHOUD
I. Inleiding en voorgeschiedenis
I.1. Inleiding 4
I.2. Plangebied 4
I.3. Huidige
regelingen 5
II.
Beleidskader
ll.1 Rijksbeleid 6
II.2 Provinciaal
beleid 6
II.3 Gemeentelijk
beleid 7
III. Ruimtelijke beschrijving
III.1. Historische
beschrijving 10
III.2. Wijkomschrijving
III.2.1.
Morfologische opbouw 11
III.2.2.
Waardevolle bebouwing, monumenten & archeologie 12
III.2.3.
Statistische gegevens 13
III.2.4.
Voorzieningen 14
III.2.5.
Groen- en waterstructuur 17
III.2.6.
Verkeer 18
IV. Toekomstige ontwikkelingen
IV.1 Algemeen 21
IV.2 Spoorzone 21
IV.4 supermarkt
Ruys de Beerenbrouckstraat 22
IV.5 Groengebied
Meeslaan 22
IV.6 Overige
ontwikkelingen 23
V. Milieu
V.1 Bedrijven 24
V.2 Bodem 27
V.3 Duurzaam
bouwen 28
V.4 Geluid 28
V.5 Luchtkwaliteit 30
V.6 Water 31
V.7 Ecologie 33
V.8 Externe
veiligheid 34
VI Handhaving
VI.1 Algemeen 36
VI.2 Beleid 37
VII. Toelichting bij de
planvoorschriften
VII.1 Algemeen 39
VII.2 Bestemmingen 39
VII.3 Overige
aanduidingen 40
VII.4 Wijzigingen
woningwet 40
VII.5
Mogelijkheden woninguitbreiding
VII.5.1.
Algemeen 41
VII.5.2.
Bouwlagen en kapprofiel 42
VII.5.3.
Categorie-indeling 43
VII.5.4.
Mogelijkheden buiten het kapprofiel 43
VIII Vooroverleg en inspraak
VIII.1
Maatschappelijke uitvoerbaarheid 46
VIII.2 Overleg ex.
artikel 10 Bro 46
IX. Financiële paragraaf 57
I. Inleiding en voorgeschiedenis
I.1. Inleiding
Het
voorliggende bestemmingsplan “Noordwest, deelgebied I” is tot stand gekomen om
een aantal (sterk) verouderde bestemmingsplannen en hun verschillende
regelingen te vervangen door één plan. Het bestemmingsplan maakt deel uit van
het voornemen om voor de gehele noordwestelijke kwadrant van Delft te komen tot
een nieuwe planologische regeling. Bestemmingsplannen voor de deelgebieden 2 en
3 worden achtereenvolgens opgesteld en in procedure gebracht.
Binnen
de gemeente Delft wordt gestreefd naar een zekere schaalvergroting in
bestemmingsplannen om naar de bewoners meer duidelijkheid te scheppen over hun
mogelijkheden en beperkingen. Belangrijkste doel van het bestemmingsplan is dan
ook het opheffen van de (nu vaak nog)
verschillende regelingen door één plan, waarin de rechtszekerheid van de
burgers gewaarborgd is, maar daarnaast een zekere flexibiliteit en eenvoud in
regelgeving richtinggevend is.
In
oktober 1998 is binnen de gemeente een startbijeenkomst georganiseerd om de
aanpak van een nieuw bestemmingsplan voor het noordwestelijke deel van Delft te
bespreken. Voor het eerste deel van dit bestemmingsplan, de wijken
Westerkwartier, Olofsbuurt, Hof van Delft en Agnetapark, is in april ’99 een
startnota opgesteld, waarin de uitgangspunten voor het nieuwe bestemmingsplan
zijn verwoord. Deze startnota is in drie bijeenkomsten met de buurtbewoners
besproken. Daarna is de nota, o.a. naar aanleiding van deze
bewonersbijeenkomsten, aangepast en in mei 2000 om instemming voorgelegd aan de
Commissie Duurzaamheid en vastgesteld door B&W (30 mei 2000). De startnota
heeft aan het opstellen van het bestemmingsplan ten grondslag gelegen.
In
eerste instantie was het de bedoeling voor het gehele noordwestelijke
woongebied van Delft (ten noorden van de Westlandseweg, ten westen van de
spoorlijn) één bestemmingsplan te maken. Omdat de grootte van het plangebied
tot onnodige vertraging zou kunnen leiden, is ervoor gekozen een driedeling te
maken. Hierbij is de karakteristiek van de verschillende wijken als
uitgangspunt genomen. Het eerste deelgebied wordt ruwweg gevormd door de oude
schil rond de binnenstad (zie afbeelding 1).
Het
plangebied omvat de wijken Westerkwartier, Olofsbuurt, Hof van Delft en Agnetapark
e.o. De plangrenzen worden gevormd door het bedrijventerrein DSM-Gist aan de
noordkant, de bebouwingsgrens van de bestaande bebouwing aan de Spoorsingel aan
de oostkant (overeenkomstig de grens van het ontwerp-bestemmingsplan
Spoorzone), de Westlandseweg aan de zuidkant en de lijn
Krakeelpolderweg/Westplantsoen/Ruys de Beerenbrouckstraat/Provincialeweg aan de
westkant. Er is gekozen om de bestaande bebouwing aan de Spoorsingel op te
nemen in bestemmingsplan Noordwest, deelgebied I. Ten eerste omdat bij
herontwikkeling van de Spoorzone deze bebouwing gehandhaafd zal blijven.
Bovendien vormt de bebouwingsgrens de enige mogelijkheid een ruimtelijk
logische grens tussen de twee bestemmingsplangebieden te definiëren. Omdat wel
sprake zal zijn van een complete herinrichting van de ruimte tussen de
bebouwing aan de Spoorsingel en de bebouwing aan de Phoenixstraat, is deze
ruimte opgenomen in bestemmingsplan Spoorzone.

Afbeelding
1 Afbeelding
2
I.3. Huidige regelingen
Een
van de aanleidingen voor een nieuw bestemmingsplan is een gewenste
schaalvergroting van bestemmingsplangebieden. Momenteel gelden in het gehele
noordwestelijke deel van Delft ongeveer 10 verschillende bestemmingsplannen. In
deelgebied 1 gaat het dan om:
- uitbreidingsplan
In den Voordijkshoornsen Polder
- bestemmingsplan Hof van Delft en de
deelplannen St.Olofsstraat en Kempenaerstraat
- bestemmingsplan
Hugo de Grootterrein
- bestemmingsplan
Westerkwartier
-
delen van Uitbreidingsplan laan van Altena en het Plan in Onderdelen
1932
(zie
afbeelding 2).
Het merendeel van deze bestemmingsplannen is
(sterk) verouderd. Bovendien is geen sprake van een eenduidige regeling. Het
beleid in Delft is gericht op een meer eenduidige en onderling vergelijkbare
manier van bestemmen en regelen.
Het
nationale ruimtelijk beleid is in concept neergelegd in de 5de Nota Ruimtelijke Ordening
“Ruimte maken, Ruimte delen”. Hoewel de beleidsuitspraken uit deze nota
richtinggevend zijn voor het beleid op een lager schaalniveau, zijn de
beleidslijnen in de nota van een dusdanig hoog abstractieniveau dat hieruit
voor het plangebied Noordwest, deelgebied 1, geen directe, concrete
beleidsvoornemens zijn te destilleren.
De
5de nota bevat de strategische uitgangspunten voor de toekomstige
ruimtelijke inrichting van Nederland, mede in Europees verband. In de nota
worden zeven criteria genoemd: ruimtelijke diversiteit, economische en
maatschappelijke functionaliteit, culturele diversiteit, sociale
rechtvaardigheid, duurzaamheid, aantrekkelijkheid en de menselijke maat. Een
belangrijke consequentie van de 5de nota voor het ruimtelijk beleid
is de keuze voor (nog aan te wijzen) rode en groene contouren. Voor het
betreffende plangebied is dit niet relevant, omdat het om bestaand stedelijk
gebied gaat. Centraal in de nota staat ook de wens om het combineren van wonen
en werken te stimuleren. In het bestemmingsplan wordt werken aan huis mogelijk
gemaakt door binnen de bestemming Woondoeleinden ook andere functies toe te
staan met een maximum oppervlak van 30% van het totale oppervlak.
Begin
2003 wordt de nieuwe wet op de archeologie van kracht. Deze wet stelt een
ingrijpende wijziging voor van de Monumentenwet 1988 en vloeit voort uit de
rijkswet 1998 tot goedkeuring van het verdrag van Valetta (Malta). Dit verdrag
beoogt het cultureel erfgoed in de bodem te beschermen. Om dit mogelijk te
maken, dient voorafgaand aan de ontwikkeling van bouwinitiatieven een onderzoek
te worden ingesteld naar de archeologische waarden om een optimale afstemming
te bereiken tussen de behoeften van de archeologie en de ruimtelijke ordening.
Het is de bedoeling het archeologisch erfgoed zoveel mogelijk onaangetast ‘in
situ’ te bewaren door inpassing van het bouwplan en, als dit niet mogelijk is,
dit erfgoed zo goed mogelijk te documenteren en voor het nageslacht
toegankelijk te maken. In de wet op de archeologie wordt onder meer een
verbodsbepaling opgenomen voor het verstoren van de bodem zonder of in
afwijking van een aparte (archeologie)vergunning. Deze verbodsbepaling geldt
voor de nader aan te wijzen gebieden van archeologische waarde. Deze gebieden
zullen op de bestemmingsplankaart worden opgenomen.
De
hoofdlijnen voor de ruimtelijke ontwikkeling in de provincie zijn beschreven in
het Streekplan Zuid-Holland West uit 1997. In navolging op het rijksbeleid
wordt ook hier de nadruk gelegd op het belang van de compacte stad en het
behoud van de veelzijdigheid van het stedelijk functioneren. Het compacte stad
beleid richt zich daarom op “veranderingsprocessen”, met “prioriteit voor vernieuwing, verbetering, herstructurering, hergebruik
en verdichting in het stedelijk gebied, mede gericht op vergroting van de
functiemenging op stadsdeelniveau, dit met inachtneming van de eisen die aan
een goed woon- en leefmilieu worden gesteld”. Hieruit spreekt de wens tot
een zekere mate van flexibiliteit.
Het
bestemmingsplan haakt hierop in door binnen de bestemming Woondoeleinden
meerdere functies mogelijk te maken en bepaalde gebieden aan te wijzen als zone
voor Gemengde Doeleinden, met als doel de multifunctionaliteit in deze gebieden
te behouden en te versterken.
“Het
tot staan brengen van de ‘leegloop van de stad’ vormt voor de
verstedelijkingsstrategie de belangrijkste doelstelling”. Het beleid is gericht
op behoud en beheer van de bestaande woningvoorraad en herstructurering tot
'‘duurzaam wonen” (in elke levensfase passende woonruimte). Hiermee
samenhangend is voor bestemmingsplan Noordwest gekozen voor duidelijke
regelgeving met betrekking tot uitbreidingsmogelijkheden van de woning, om
vertrek van bewoners als gevolg van een veranderende gezinssituatie te
voorkomen.
Tenslotte
is het Agnetapark in het Streekplan Zuid-Holland West vermeld als “Indicatie
cultuurhistorische waarden in stads- en dorpsgebied”.
Door
de Provincie Zuid-Holland zijn op de Archeologische Monumentenkaart (AMK-kaart)
gebieden aangewezen waarvan bekend is dat er archeologische waarden in de grond
aanwezig zijn. Verder is een concept-Cultuurhistorische Hoofdstructuur kaart
(CHS-kaart) uitgebracht waarop de verwachtingen zijn aangegeven op het
aantreffen van archeologische sporen. Naar verwachting zullen de gegevens van
de AMK-kaart en de CHS-kaart een grote rol spelen in het aanwijzen van gebieden
die archeologievergunningsplichtig zullen worden.
Ten
aanzien van het gemeentelijk beleid zijn de volgende beleidsnota’s
richtinggevend geweest bij het opstellen van het bestemmingsplan.
De
“Ontwikkelingsvisie 2025”,
vastgesteld door de raad in maart ’98 is de leidraad voor het ruimtelijk beleid
in Delft. Hierbij zijn twee zaken richtinggevend: Delft als combinatie compacte
stad/netwerkstad en de strategie Delft Kennisstad. Met betrekking tot het
plangebied zijn een aantal uitspraken uit de Ontwikkelingsvisie relevant.
Zo
loopt een van de ruggengraten door het plangebied; de Ruys de
Beerenbrouckstraat. De ruggengraten houden als belangrijke doorgaande radiale
routes de fragmenten van Delft bij elkaar. Zoals ook in de Ontwikkelingsvisie
staat vermeld, vallen deze routes samen met bestaande en geplande tramverbindingen.
Langs de radiale routes wordt ingezet op multifunctionaliteit: winkels,
kantoren, bedrijvigheid, voorzieningen en bijzondere woonvormen. Na
vaststelling van de Ontwikkelingsvisie is discussie ontstaan over het verloop
van de tramlijn over de Reinier de Graafweg/Westlandseweg in plaats van over de
Ruys de Beerenbrouckstraat. Het belang van de Ruys de Beerenbrouckstraat als
radiale route blijft aanwezig, zij het naar alle waarschijnlijkheid niet in de
vorm van een tramverbinding.
Wat
betreft het wonen in Delft wordt in zijn algemeenheid een aantrekkelijk
woonmilieu nagestreefd, met voldoende aanbod in verschillende categorieën en
met een diversiteit aan woonmilieus. In het plangebied Noordwest zijn de
mogelijkheden tot verdichting en herstructurering beperkt. Het bestemmingsplan
is dan ook conserverend van karakter. Veranderingen zijn mogelijk, maar vinden
plaats binnen de huidige ruimtelijke structuur. De schil rondom de binnenstad
is in de Ontwikkelingsvisie aangegeven als herstructureringsgebied op langere
termijn, wat met name te maken heeft met de veranderingen in dit gebied als
gevolg van de ondertunneling van het spoor. De impact van deze
herstructureringsingrepen en de invloed ervan op de ruimtelijke structuur van
het gebied zijn in dit stadium nog onvoldoende duidelijk. Bovendien spelen deze
ontwikkelingen niet binnen de bestemmingsplantermijn van 10 jaar.
Een
tweede beleidsinstrument is het Duurzaamheidsplan 3D, vastgesteld in
oktober 1999. In dit plan wordt de beleidsvisie op het gebied van duurzaamheid
uitgewerkt in 4 thema’s: “Ruimte, bouwen & energie”, “Mobiliteit”, “Water
en ecologie” en “Afval”. Binnen deze 4 thema’s zijn concrete projecten
geformuleerd. Om richting te geven aan het beleid zijn in het duurzaamheidsplan
een aantal principes van duurzame stedelijke ontwikkeling onderscheiden:
intensiveren, dematerialiseren, regenereren, evolueren, diversificeren en
vermaatschappelijken. Met uitzondering van algemene beleidsdoelstellingen,
zoals aandacht voor duurzaam bouwen bij nieuwbouw/renovatieprojecten,
terugbrengen energieverbruik, uitbreiding afval-retourettes e.d. zijn in het
3D-plan geen concrete projecten opgenomen die op het plangebied betrekking
hebben.
Een
andere belangrijk beleidsstuk is de nota Bedrijven en bestemmingsplannen
waarin de nieuwe methode is verwoord waarop de gemeente Delft bedrijven opneemt
in bestemmingsplannen. Deze nota is tot
stand gekomen in nauw overleg met rijk en provincie en zal naar verwachting in
het voorjaar van 2003 worden vastgesteld. Uitgangspunt van het nieuwe beleid is
de zogenoemde VNG-methode “ Bedrijven en milieuzonering” uit 1999. In de nota
wordt gemotiveerd in welke type plangebieden en onder welke voorwaarden er
binnen de gemeente Delft van de VNG-methode kan worden afgeweken.
Ook
vanuit Mobiliteit zijn een aantal beleidsplannen richtinggevend geweest voor
dit bestemmingsplan. Een eerste
beleidsplan in het kader van Mobiliteit is het Verkeer- en vervoersplan. Voor het bestemmingsplan is met name de
indeling in verblijfsgebieden interessant. Op basis van deze indeling èn op
grond van de in het plangebied aanwezige busroutes is tot een indeling gekomen
in Verkeersdoeleinden I en II. Het Verkeers- en vervoersplan wordt in 2003
geactualiseerd.
Het
parkeerbeleid voor Delft is in februari 2001 vastgelegd in de 2de
concept nota: “Een bereikbare
binnenstad. Parkeerbeleid sleutel tot autoluw (plus)”. In deze nota is met
name het parkeerbeleid voor de binnenstad geformuleerd, maar daarnaast wordt
aandacht besteed aan de effecten van dit beleid voor omliggende gebieden,
waaronder het plangebied. Belangrijkste uitgangspunt van de parkeernota is dat
de gehele binnenstad autoluw zal worden, waarbij bezoekers parkeren in goed
bereikbare parkeergarages aan de rand van de binnenstad. Zonder aanvullende
maatregelen zou dit in de schil (waaronder het plangebied) leiden tot een
toename van parkeerdruk en daarmee verkeersdruk. Daarom is in het
Westerkwartier en de Olofsbuurt een parkeeronderzoek gestart.
Op
basis van de resultaten van dit onderzoek is tot oplossingsrichtingen gekomen,
die met ingang van oktober 2001 in werking zijn getreden. Eind 2002 zal het
nieuwe parkeerbeleid worden geëvalueerd (meer hierover in paragraaf III.2.6).
Een
laatste beleidsstuk op het gebied van Mobiliteit is het Fietsactieplan (vastgesteld door de raad in november 1999). In het
Fietsactieplan worden de belangrijkste maatregelen genoemd om te komen tot een
verbetering van het fietsnetwerk in Delft. De belangrijkste fietsroutes in het
plangebied zijn in paragraaf III.2.6. aangegeven. De hoofdfietsroutes worden
niet apart bestemd, maar vallen eveneens binnen de bestemmingen
Verkeersdoeleinden I en II.
Voor
wat betreft het beleid t.a.v. de openbare ruimte in het plangebied zijn met
name de beleidsstukken “Ruimte voor
natuur” (1994) en “Bomen op dreef”(1994) interessant. De
eerste nota is echter van een dusdanig hoog abstractieniveau dat over de
(schaars aanwezige) openbare groengebieden in het plangebied geen uitspraken
worden gedaan. De tweede doet uitspraken over belangrijke structuurlijnen in de
stad, waarvan enkele in het plangebied (zie paragraaf III.2.5). Bescherming van
bomen vindt plaats door middel van de nieuwe bomenverordening en het daaraan te
koppelen beleidsplan.
De
concept-nota “Ecologische Hoofdstructuur Delft” (2002) beschrijft
de ecologische visie van de gemeente op natuurontwikkeling in de stad. Deze
nota moet nog in procedure worden gebracht. In de nota worden met name de
randen van het plangebied aangewezen als secundaire ecologische
verbindingsroute. Het Agnetapark is aangewezen als groen kerngebied.
In
het bestemmingsplan worden de in het
plangebied aanwezige monumentale bomen specifiek benoemd en daarmee beschermd.
Het Agnetapark wordt beschermd door voor dit waardevolle groengebied een aparte
bestemming ‘park’ op te nemen met een daaraan verbonden aanlegvergunning. Ook
het speelplaatsenbeleid (1997) is
van invloed op het bestemmingsplan, omdat er voor gekozen is de benoemde
speelplaatsen (speelplekken/trapveldjes) met een aanduiding op de plankaart aan
te geven. Hoewel de speelplaatsen vallen binnen de bestemming Openbaar Groen,
wordt in de voorschriften geregeld dat bebouwing of gebruik ervan in
overeenstemming moet zijn met de functie van speelplaats.
In
september 1999 is de nota Kinderopvang:
het beleidskader afgerond. Hierin wordt de noodzaak van
kinderopvangfuncties in Delft benadrukt, waarbij ook gesproken wordt over
financiële stimulatie. In het bestemmingsplan wordt hierop ingespeeld, door in
de toelichting op te nemen, dat bij mogelijke toekomstige ontwikkelingen (zie
hoofdstuk IV) de vestiging van kinderdagverblijven door de gemeente zal worden
gestimuleerd.
III. Ruimtelijke
beschrijving
III.1. Historische beschrijving
De
ontwikkeling van het plangebied komt halverwege de 19de eeuw op
gang. Belangrijkste katalysator voor de ontwikkelingen is de aanleg van de
spoorlijn. Belangrijke structuurelementen van vóór die periode, die ook nu nog
(ten dele) in de ruimtelijke structuur van de wijk zichtbaar zijn, zijn de
Buitenwatersloot en de tuinenstructuur achter de Laan van Overvest.
Buitenwatersloot
Rond
de eeuwwisseling vinden op verschillende plaatsen in het plangebied
ontwikkelingen plaats. Door de bevolkingsgroei na 1870, ontstaat vraag naar
goedkope arbeiderswoningen. Eind 19de eeuw wordt, op initiatief van
de industrieel J.C. van Marken het eerste deel van het Agnetapark aangelegd. Na
de eeuwwisseling volgen delen van de Olofsbuurt en het Westerkwartier. Veel
minder dan bij het Agnetapark is hierbij sprake van een stedebouwkundig
concept. De insteek is vooral pragmatisch; de nieuwe woningen worden min of
meer tegen de bestaande stad geplakt.
In
1921 vindt de annexatie plaats van grote delen van de aangrenzende gemeente Hof
van Delft en Vrijenban. In die tijd wordt het “Uitbreidingsplan in den Voordijkshoornschen
Polder” ontwikkeld, wat nu voor een deel van het plangebied nog steeds vigeert.
Belangrijke structuurelementen uit het plan zijn de Hof van Delftlaan en de
Krakeelpolderweg/Westplantsoen. In die periode wordt een groot gedeelte van de
wijk Hof van Delft gerealiseerd als woonwijk voor de middenklasse. Ook het
westelijke deel van het Agnetapark komt in die periode tot stand.
Halverwege
de 20e eeuw is het gehele plangebied nagenoeg bebouwd. Uitbreidingen
in de jaren vlak vóór en na de Tweede Wereldoorlog, volgens de in die tijd
geldende stedebouwkundige inzichten als de wijkgedachte en functionele stad,
komen in het plangebied dan ook bijna niet voor, met uitzondering van de meest
noordwestelijke én de meest zuidelijke punt van het plangebied. In deze delen
is ook de enige middelhoogbouw van het plangebied gerealiseerd.
De
stadsvernieuwing in de jaren ’70 is tot op zekere hoogte van invloed geweest op
de verschijningsvorm van het plangebied. Ingrepen hebben overwegend
plaatsgevonden binnen de schaal en morfologie van het plangebied. In sommige
delen van het Westerkwartier en de Olofsbuurt heeft vervangende nieuwbouw
plaatsgevonden. Op beperkte schaal zijn woningen gesloopt om plaats te maken
voor groen en parkeren.
III.2. Wijkomschrijving
|
Afbeelding 3 |
In
het plangebied zijn een aantal stedelijke structuurlijnen te onderscheiden.
Het gaat dan allereerst om de Buitenwatersloot, een van de meest
beeldbepalende waterlijnen in Delft. De bebouwing langs de Buitenwatersloot
dateert soms nog uit de zeventiende eeuw en kent een karakter vergelijkbaar
met delen van de binnenstad. Andere structuurlijnen zijn verkeersroutes als
de Krakeelpolderweg/ Westplantsoen/Hof van Delftlaan en de Ruys de
Beerenbrouckstraat. De Hof van Delflaan valt op door de ‘richtingverdraaiing’
t.o.v. het verder strakke stratenpatroon. Binnen
het plangebied zijn verschillende deelgebieden aan te wijzen met een eigen
karakteristiek. Het Westerkwartier en de Olofsbuurt zijn met hun kleine
woningen, hoge bebouwingsdichtheid en smalle, stenige straatprofielen
typische voorbeelden van arbeiderswijken uit begin deze eeuw. Hoewel het
Agnetapark uit dezelfde periode stamt, heeft hieraan, zoals gezegd, een heel
ander stedebouwkundig concept ten grondslag gelegen, waardoor het gebied
ruimer van opzet is en een parkachtige uitstraling heeft. De wijk Hof van
Delft wordt gekenmerkt door grotere woningen en een ruimer straatprofiel,
waarin ruimte is voor beplanting. |
Hoge bebouwingsdichtheid
De
genoemde verschillen in karakteristiek hebben niet tot gevolg dat het
plangebied gevoelsmatig wordt opgedeeld. De karakteristieken lopen in elkaar
over. De aanwezige structuurlijnen vormen geen harde barrières.
Het
Agnetapark is als rijksmonument beschermd. Het gehele park wordt in de
redengevende omschrijving als ‘arbeiderskolonie’ vermeld en zou daarom in zijn
totaliteit beschermd zijn. In de opsomming van de tot het monument behorende
kadastrale percelen komen echter alleen de bebouwde percelen voor. Op enkele
uitzonderingen na is alle bebouwing van het Agnetapark daarmee aangewezen als
rijksmonument. De onbebouwde kadastrale percelen ontbreken in de opsomming. De
beschermde status van deze percelen is juridisch niet eenduidig vastgesteld. In
het bestemmingsplan is het gehele Agnetapark (bebouwd en onbebouwd) opgenomen
als monument. In de voorschriften is het gebied beschermd middels een
aanlegvergunningenstelsel. Het Agnetapark is inmiddels ook geselecteerd als
mogelijke uitbreiding van het beschermd stadsgezicht. Op de plankaart is het
geselecteerde gebied aangegeven, evenals de belangrijkste ruimtelijke
kenmerken. In het welstandsbeleid zal voor dit gebied het toetsingskader verder
worden omschreven.
In
het plangebied zijn verder geen rijksmonumenten aanwezig. Wel zijn
verschillende panden in het plangebied geïnventariseerd in het kader van het
Monumenten Inventarisatie Project. Enkele daarvan zijn vervolgens geselecteerd
in het kader van het Monumenten Selectie Project (MSP), wat betekent dat deze
panden naar alle waarschijnlijkheid als rijksmonument worden aangewezen. Deze
panden zijn op de plankaart met een aanduiding aangegeven. Het gaat dan om
villa Solheim aan de Ruys de Beerenbrouckstraat, de voormalige school aan de
Spoorsingel 7/8 en Hofmans Bodega (Spoorsingel 24). Behalve rijksmonumenten
zullen ook gemeentelijke monumenten in het gebied worden aangewezen, onder
andere aan de Buitenwatersloot, Spoorsingel en Laan van Overvest.
Villa Solheim en Agnetapark
Op
de plankaart zijn de terreinen aangegeven binnen het plangebied die een hoge
archeologische waarde hebben. Daarnaast is het gebied aangegeven met een hoge
verwachting op het aantreffen van archeologische sporen. In paragraaf II.1 is
de veranderende wetgeving aan de orde gekomen, als gevolg van het Verdrag van
Valetta. Omdat deze wetgeving nog niet van kracht is, zijn interimvoorschriften
opgesteld voor het bestemmingsplan om te voorkomen dat in de periode tot het
van kracht worden van de wetgeving op nationaal niveau belangrijk materiaal
verloren gaat.
|
|
De
gegevens in deze paragraaf zijn ontleend aan het ‘Jaarboek Bestuursinformatie
2000’ en de uitgave ‘Wijk- en buurtgegevens, bevolking en woonruimten 2000’.
Het plangebied omvat de volgende vier buurten: -
1301: Agnetapark -
1303: Ministersbuurt Oost (Hof van Delft) -
1305: Olofsbuurt -
1307: Westerkwartier |
De
gehele stad had op 1 januari 2000 een inwoneraantal van 96.101. In het
plangebied is dus ongeveer 10% van de Delftse bevolking woonachtig. Hierbij is
sprake van een gemiddelde dichtheid van 114 inwoners per hectare. Vergeleken
met andere buurten in Delft is dit hoog. Over het algemeen schommelt de
inwonersdichtheid tussen de 60 en 90 inwoners per hectare. De Olofsbuurt kent
in het plangebied de hoogste inwonerdichtheid (162 inwoners/ha.).
Op
1 januari 2000 zijn er in het plangebied ongeveer 4700 woningen. De gemiddelde
woningdichtheid ligt op 55 woningen per hectare.
Zowel
Hof van Delft als het Westerkwartier zitten nabij dit gemiddelde met
respectievelijk 54 en 58 woningen/ha. De woningdichtheid in het Agnetapark ligt
aanzienlijk lager (29 woningen/ha.), maar wordt gecompenseerd door de hoge
woningdichtheid van de Olofsbuurt (80 woningen/ha.). Een aantal grote
voorzieningen in het Westerkwartier (zoals het Stanislascollege, het
Grotiuscollege op het van der Madeterrein en de cluster maatschappelijke
voorzieningen aan de Westlandseweg) die veel ruimte in beslag nemen, maar geen
woningbouw kennen, verklaren het verschil in woningdichtheid tussen het
Westerkwartier en de Olofsbuurt.
Wat
betreft de eigendomsverhoudingen doet het Jaarboek alleen uitspraken over de
gehele wijk Hof van Delft. Hierbij is sprake van 63% huur- versus 37%
koopwoningen. De verhouding tussen huur- en koopwoningen lijkt binnen het
plangebied anders te liggen. Het sociaal woningbezit beperkt zich tot het
Agnetapark en een aantal blokken in het Westerkwartier en de Olofsbuurt.
*
winkelvoorzieningen
Winkelvoorzieningen
zijn verspreid over het plangebied aanwezig. Het gaat daarbij voornamelijk om
kleinschalige, buurtgebonden detailhandel. Concentraties in de vorm van
buurtwinkelcentra bevinden zich aan de Hof van Delftlaan en Krakeelpolderweg.
Het gaat hierbij om een supermarkt en enkele kleinere winkelvoorzieningen.
Steeds is daarbij sprake van een combinatie met wonen. Aan de Hugo de
Grootstraat is ook sprake van een beperkte concentratie van
winkelvoorzieningen. Hierbij is het aantal winkels in de food-sector beperkt.
De huidige supermarkt aan de Laan van Altena wordt naar verwachting vervangen
door een supermarkt met een groter vloeroppervlak. Deze supermarkt vormt de
enige solitaire winkelvoorziening van formaat in het plangebied.
Buurtwinkelcentrum Hof van Delftlaan
*
horeca
Horeca-vestigingen
komen in het plangebied in beperkte mate voor: enkele buurtcafé’s, een
party-centrum in het Agnetapark en enkele snackbars/lunchrooms.
De
in het plangebied aanwezige hotels zijn met een maatbestemming in het
bestemmingsplan opgenomen.
|
Afbeelding 5 |
|
*
scholen
In
het plangebied zijn verschillende scholen voor basisonderwijs gelegen: de
Freinetschool aan de Loevesteinplaats, een dislocatie van de Freinetschool
(Margriet) op het binnenterrein achter De Vriesstraat en Het Mozaïek aan de
Caspar Fagelstraat. Daarnaast is sinds enige tijd ook het voormalige
Hollandcollege aan de Hugo de Grootstraat gedeeltelijk in gebruik door de
Freinetschool.
In
het Westerkwartier zijn twee middelbare scholen gevestigd; het Stanislascollege
aan de Krakeelpolderweg (met eveneens een overlooplocatie in het voormalige
Hollandcollege aan de Hugo de Grootstraat) en het Grotiuscollege aan de van
Bleiswijckstraat (op het “van der Madeterrein”). Deze laatste valt net buiten
het plangebied.
*
buurthuizen
Momenteel
zijn er twee buurthuizen: het buurthuis Olofsbuurt in de Olofsstraat en
buurthuis de Wending in het Westerkwartier.
*
kantoren en bedrijven
Werkgelegenheid
beperkt zich tot kleinschalige bedrijvigheid en kantoren aan huis. Vooral langs
de Buitenwatersloot, Hugo de Grootstraat en Spoorsingel komen bedrijven en/of
kantoren voor, veelal in combinatie met wonen. Wat grootschaliger bedrijvigheid
is er in de vorm van de steenhouwerij aan de Laan van Overvest. Verder is in
het Agnetapark een drukkerij aanwezig. Voor een volledig overzicht van de in
het plangebied aanwezige bedrijven, wordt verwezen naar paragraaf V.1.
*
maatschappelijke voorzieningen
Het
Westerkwartier kent aan de zuidkant nog een cluster van maatschappelijke
voorzieningen. De brandweer en politie zijn hier gevestigd en verder diverse
medisch-maatschappelijke voorzieningen. Er zijn twee kerken in het plangebied
aanwezig: de Nicolaas en Gezellenkerk aan de Raamstraat en de Ontmoetingskerk
aan de C. de Wittstraat. De Mattheuskerk aan de Frank van Borselenstraat heeft
zijn functie verloren. De Openhofkerk aan de Ruys de Beerenbrouckstraat is
inmiddels gesloopt.
Cluster
maatschappelijke voorzieningen
|
Afbeelding 6 |
De
belangrijkste landschappelijke elementen zijn te vinden in het noorden van
het plangebied, in en rond het Agnetapark. Een andere groenplek van formaat
is de groenzone langs de Meeslaan. Deze zone vormt een buffer tussen het
bedrijventerrein DSM-Gist en het woongebied ten zuiden hiervan. Verder
is de Buitenwatersloot een belangrijk landschappelijk element. Verspreid door
het plangebied zijn wel groen/speelplekken aanwezig, maar de wijken maken
over het algemeen een “stenige” indruk. De speelplaatsen, zoals geformuleerd
in het speelplaatsenbeleid zijn met een aanduiding op de plankaart
aangegeven. Belangrijke
groenstructuurlijnen, zoals vermeld in de nota “Bomen op dreef” zijn de Hof
van Delftlaan, de Ruys de Beerenbrouckstraat, de Buitenwatersloot, de Hugo de
Grootstraat, de Krakeelpolderweg en de Westlandseweg. Om
te voorkomen dat de bestemming “openbaar groen” het Agnetapark onvoldoende
tegen ongewenste ingrepen beschermt, is dit gebied op de plankaart bestemd
als park met aanlegvergunning. |
Ook
de in het park aanwezige monumentale bomen zijn op deze manier beschermd. Een
solitaire monumentale boom aan de Buitenwatersloot is apart op de plankaart
aangegeven. Voor meer informatie over de ecologische waarden in het plangebied
wordt verwezen naar paragraaf V.7.
De
hoeveelheid oppervlaktewater in het gebied is beperkt. De Buitenwatersloot
vormt een structuurbepalende waterlijn in Delft en is van bovenlokaal belang.
Naast
de Buitenwatersloot is water aanwezig in het Agnetapark. Dit water draagt bij
aan de kwaliteit van deze groenvoorziening. Aan de zuidkant van het plangebied
is water aanwezig rondom de Mattheuskerk en langs de van Bleiswijckstraat en
Jacoba van Beierenlaan (zie ook verder paragraaf V.6).

Water in het Agnetapark
In
het Verkeers- en Vervoersplan van de gemeente is het hoofdwegennet voor 2010
vastgelegd.
|
|
|
|
Afbeelding
7
Binnen
het plangebied behoren de Ruys de Beerenbrouckstraat, de Westlandseweg en de
Provincialeweg tot dit hoofdwegennet. De overige wegen behoren niet tot het
hoofdwegennet en vervullen geen functie voor het doorgaand autoverkeer. Een
groot aantal van deze wegen zal worden aangewezen als verblijfsgebied.
Belangrijke consequentie voor het aanwijzen van ‘verblijfsgebieden’ is dat deze
gebieden in het kader van ‘duurzaam veilig’ bestemd worden als 30 km/u-zone,
wat betekent dat bij (her)inrichting de prioriteit ligt bij het langzaam
verkeer.
Busverkeer
is beperkt tot enkele lijnen over de Ruys de Beerenbrouckstraat, Westlandseweg,
Krakeelpolderweg en de Hugo de Grootstraat/Adriaan Pauwstraat.
Belangrijke
fietsroutes in het plangebied zijn de fietsroute langs het spooremplacement
(Coenderstraat en Lokomotiefpad), de Hof van Delftlaan en de Buitenwatersloot.
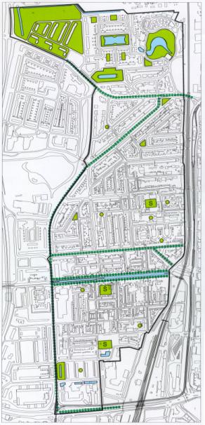
De hoofdverkeersroutes, busroutes en hoofdfietsroutes zijn op afbeelding 7
aangegeven.
De
parkeerdruk in het plangebied (met name Westerkwartier en Olofsbuurt) is hoog.
Door de krappe straatprofielen is er een tekort aan parkeerplaatsen en door de nabijheid van de binnenstad is er
veel oneigenlijk gebruik van parkeerplaatsen door bewoners/bezoekers van de
binnenstad. Naar de parkeerproblematiek in het plangebied is eind 2000 een
parkeeronderzoek afgerond door Grontmij Advies en Techniek. In dit onderzoek is
de parkeercapaciteit en de parkeerbehoefte in beide wijken onderzocht en worden
enkele oplossingsrichtingen genoemd.
In
beide wijken samen zijn een kleine 3000 parkeerplaatsen aanwezig. In het
Westerkwartier is ’s nachts 90% tot 95% van de capaciteit bezet. Overdag daalt
in het Westerkwartier de bezettingsgraad naar 75%, een nog altijd opmerkelijk
hoog percentage voor een woonwijk. De delen dichtbij station en binnenstad
hebben zelfs ook overdag een bezettingsgraad van 90%, met op koopavond en
zaterdag uitlopers tot 100%. De problemen in de Olofsbuurt zijn nog nijpender
te noemen dan die in het Westerkwartier. Na 21 uur ’s avonds zijn geen formele
plaatsen te vinden. De bezettingsgraad is dan ruim 100% (foutparkeerders). Ook
overdag is sprake van een hoge bezettingsgraad (ruim 80%). De gestage groei van
het autobezit in beide wijken heeft ervoor gezorgd dat de maximale bezetting in
de wijk is benaderd. De hoge bezettingsgraad overdag tijdens een gewone werkdag
en het relatief beperkt aantal voorzieningen duidt er bovendien op dat de wijk
plaats biedt aan voertuigen die niet van bewoners zijn. Uit kentekenonderzoek
blijkt dat zowel in de Olofsbuurt als in het Westerkwartier overdag ongeveer
30-35% van de geparkeerde auto’s van niet-bewoners is. De gebieden nabij het
station en in de omgeving van de brandweer hebben overdag eveneens een hoog
percentage (40-45%) voertuigen van niet-bewoners. Ook is de herkomst bekeken
van de ’s nachts geparkeerde voertuigen. Hieruit bleek dat in beide wijken
slechts een klein percentage van de voertuigen behoort aan binnenstadbewoners
(2%).
Behalve
signalering van de problemen, komt het rapport ook met enkele
oplossingsrichtingen/aanbevelingen. Hierbij zijn 3 hoofdpunten te
onderscheiden:
Met
name de laatste oplossing is op korte termijn, financieel, niet haalbaar. In
het bestemmingsplan wordt daar dan ook niet van uitgegaan. In geval van
wijzigingsbevoegdheden moeten bouwplannen in ieder geval voldoen aan de
gemeentelijke parkeernormen en de druk op de omgeving niet verder vergroten.
Daarnaast kan steeds bekeken worden in hoeverre de realisatie van extra
parkeerplaatsen bespreekbaar is.
Er
is gekozen voor een combinatie van de eerste twee oplossingen. Hierbij is een
mix van vergunningparkeren en betaald parkeren ingevoerd in de wijken, om de
parkeerdruk als gevolg van ‘vreemd’ parkeren te verminderen. Daarnaast worden
voorstellen gedaan om in de wijken ongeveer 120 parkeerplaatsen extra te
realiseren, door herinrichting van bestaande straatprofielen, van groenstroken
en van resterende open ruimtes. Herinrichting zal t.z.t. met de
buurtbewoners besproken worden.
Knelpunt
in het plangebied vormt ook het stallen van fietsen. In het Westerkwartier en
de Olofsbuurt, waar bewoners met een tekort aan bergruimte kampen en ook het
straatprofiel weinig ruimte toelaat voor het stallen van fietsen, is onderzocht
waar extra ruimte kan worden gecreëerd voor het realiseren van (afsluitbare)
stallingen. Hieruit zijn twee locaties naar voren gekomen: achter het
nieuwbouwcomplex de Zonnewijzer en aan de Pootstraat. Inmiddels zijn op die
locaties fietsenstallingen gerealiseerd.
IV. Toekomstige ontwikkelingen
Het
bestemmingsplan voor Noordwest heeft overwegend een conserverend karakter. Dit
wil niet zeggen dat binnen de regeling geen wijzigingen meer mogelijk zijn,
maar dat in principe wordt uitgegaan van de huidige ruimtelijke structuur en
van ontwikkelingen die passen in schaal en maat van de bestaande bebouwing.
In
het bestemmingsplan zijn al wel enkele locaties aan te wijzen, waar op korte
termijn (binnen enkele jaren) ontwikkelingen te verwachten zijn. Daarnaast
spelen in de omgeving van het plangebied ontwikkelingen, die van invloed zijn
op het plangebied.
Het
plangebied wordt aan de oostzijde begrensd door het in voorbereiding zijnde bestemmingsplan
Spoorzone. Al sinds begin negentiger jaren is Delft bezig met plannen om het
spoor ondergronds te krijgen. In 1998 is het spoorproject als voorbeeldproject
in het kader van StiR, het stimuleringsfonds voor intensief ruimtegebruik,
aangewezen, waarna de planvorming in een stroomversnelling is geraakt.
Met
de ondertunneling van het spoor verdwijnt het spoorviaduct en ontstaat met name
in het gebied ten zuiden van het huidige station ruimte voor herontwikkeling in
de vorm van woningen en kantoren. De Spaanse architect Joan Busquets heeft voor
het gehele gebied een stedebouwkundige visie gegeven, waarin het huidige
spoortracé als langgerekte groene parkruimte zal worden ingericht, met aan
beide zijden ruimte voor woningbouw en kantoren. Ten noorden van het huidige
station behelst het plan met name een volledige herinrichting van het gebied
tussen de bebouwing aan de Phoenixstraat en Spoorsingel. Hierbij wordt onder
andere voorgesteld weer water aan te leggen en zo de binnenstad weer geheel met
water te omgeven.
Op dit moment verkeert de zogenaamde
planstudie over de spoortunnel in een afrondende fase. Begin 2003 wordt aan de
minister het voorkeursmodel gerapporteerd. Daarna zal dit model zowel
stedebouwkundig als bouwkundig verder worden uitgewerkt. Verwacht wordt dat in
2005 met de werkzaamheden gestart kan worden.
Schets Busquets (1999)
Hoe
het uiteindelijke plan ook vorm zal krijgen, voor het plangebied heeft de
ondertunneling van het spoor in ieder geval vergaande consequenties. Het
spoorviaduct vormt in de huidige situatie in vele opzichten een barrière tussen
het plangebied en de binnenstad. Ook voor
woningen aan de Spoorsingel zal de ondertunneling van het spoor van
invloed zijn; de herinrichting van het wegprofiel tussen de woningen aan de
Spoorsingel en Phoenixstraat zal de woningen aan de Spoorsingel een heel andere
positie geven in de stad. De bebouwing wordt, meer dan nu het geval is,
betrokken op de binnenstad. Enerzijds omdat er nu aan de Spoorsingel al veel
niet-woonfuncties gevestigd zijn, maar ook vanwege de veranderende positie van
de Spoorsingel in de toekomst is in het bestemmingsplan gekozen voor het
opnemen van de bestemming ‘Gemengde Doeleinden’ voor deze zone.
Enige
tijd geleden heeft Ahold Vastgoed de Openhofkerk aan de Ruys de
Beerenbrouckstraat gekocht, met het doel op deze locatie een nieuwe supermarkt
te realiseren. Achterliggende gedachte hierbij is, dat de huidige, naastgelegen
locatie, onvoldoende mogelijkheden bood tot gewenste uitbreiding van het
huidige filiaal. Gedacht wordt aan een ontwikkeling in combinatie met
woningbouw, zowel boven de nieuwe winkelvestiging als op het achter te laten
terrein. Gezien het tekort aan kinderopvang in deze wijken, is de vestiging van
een kinderopvangfunctie als randvoorwaarde meegegeven. Aandachtspunt bij
herontwikkeling is met name de oplossing van de parkeerproblematiek.
Omdat
er ten tijde van het vaststellen van dit bestemmingsplan nog onvoldoende zicht
is op de uiteindelijke plannen, en over die plannen ook nog geen overleg heeft
plaatsgehad met de buurtbewoners is ervoor gekozen de plannen te zijner tijd
middels een vrijstellingsprocedure mogelijk te maken. In het bestemmingsplan is
voor de huidige locatie van de Albert Heijn de bestaande situatie vastgelegd.
Voor de locatie van de voormalige Openhofkerk is niet de bestaande situatie
vastgelegd, omdat dit ten onrechte suggereert dat er hier geen bebouwing meer
plaats zal vinden. Het bestemmen van de locatie voor een, inmiddels gesloopte,
kerk is ook geen optie. Met het oog op de gewenste planologische ontwikkeling
voor dit gebied is gekozen voor de bestemming “gemengde doeleinden”, zodat
verschillende functies in combinatie met woningbouw mogelijk zijn. Hierbij is,
in tegenstelling tot de vigerende regeling, een maximale bouwhoogte van
afwisselend 2 tot 4 bouwlagen opgenomen.
In
het noorden van het plangebied is een groenstrook aanwezig tussen de woonwijk
en het industrieterrein van DSM Gist. Over dit gebied zijn de volgende
ontwikkelingen te melden.
In
de vigerende regeling is bebouwing van het groengebied tot op zekere hoogte
mogelijk, maar deze mogelijkheden beperken zich tot woningbouw. In het kader
van de milieuwetgeving is woningbouw echter niet mogelijk en evenmin gewenst.
In de nieuwe regeling is voor het gebied gekozen voor de bestemming “openbaar
groen”, conform het huidige gebruik van de strook en als “buffer” tussen het
bedrijventerrein en het woongebied. Toch is er wel sprake van enige mogelijke
herontwikkeling.
Allereerst
wordt al enige tijd gesproken over een mogelijke vestiging van een
kinderdagverblijf in de groenstrook. Op dit moment zijn hiervoor echter nog
geen concrete kandidaten of plannen. Een andere ontwikkeling heeft betrekking
op de noordelijke strook van het groengebied. DSM-Gist wil deze strook afstoten
t.b.v. bedrijfsvestigingen. Zoals eerder aangegeven hecht de gemeente eraan dat
tussen de woonwijk en het industrieterrein tot op zekere hoogte sprake is van
een groene buffer. Bovendien heeft het groengebied nu ook een functie als
speelplek voor de buurt. Echter, de gemeente heeft ook oog voor de wens tot
bedrijfsvestigingen en de positieve invloed daarvan op de arbeidsmarkt van
Delft. Daarnaast kan het toevoegen van bedrijven in de strook een (financiële)
impuls geven aan herinrichting van het groengebied en versterken en uitbreiden
van de waterstructuur. In het overleg tussen gemeente en DSM Gist wordt nu
gezocht naar een ruimtelijke inpassing van deze wensen. Omdat de uitkomsten van
dit overleg nog onduidelijk zijn en er dus ook nog geen bestuurlijke
besluitvorming heeft plaatsgevonden, is ervoor gekozen dit niet in het
bestemmingsplan op te nemen. Indien inderdaad sprake is van herontwikkeling kan
dat te zijner tijd worden geregeld door middel van een artikel 19-procedure met
de daaraan gekoppelde inspraakmomenten voor omwonenden en belanghebbenden. Een
andere optie is dit plandeel te zijner tijd mee te nemen in het nieuwe
bestemmingsplan voor het bedrijventerrein van DSM-Gist en Calvé.
Behalve
bovengenoemde, wat grootschaligere ontwikkelingen vinden op kleine schaal ook
steeds veranderingen in het gebied plaats. Het merendeel van deze veranderingen
vindt plaats binnen de huidige ruimtelijke structuur van het gebied en kunnen
daarom plaatsvinden binnen de nieuwe bestemmingsplanbepalingen. In enkele
gevallen zal een bestemmingsplanwijziging noodzakelijk zijn. Afhankelijk van de
schaal van de wijziging zijn hiervoor verschillende mogelijkheden in het kader
van de Wet op de Ruimtelijke Ordening.
De
gemeente heeft in de concept-nota “Bedrijven en bestemmingsplannen” het nieuwe
gemeentelijk beleid uiteengezet over de wijze waarop bedrijven in
bestemmingsplannen worden opgenomen. Dit nieuwe beleid is noodzakelijk omdat
het bestaande beleid niet voldoet aan de recente eisen op dit beleidsvlak.
Doelstelling van het nieuwe beleid is het ontwikkelen van regels die enerzijds
voldoen aan de nieuwe eisen en die anderzijds recht doen aan de specifieke
situatie in Delft. De concept nota is bij B&W besluit van 7 januari 2003
vrijgegeven voor inspraak en overleg. Hoewel het beleid nog niet is
vastgesteld, zijn de uitgangspunten wel opgenomen in het vast te stellen
bestemmingsplan Noordwest, deelgebied 1.
Uitgangspunten van het
nieuwe beleid zijn:
·
De VNG-methodiek vormt de basis voor het nieuwe beleid.
·
De menging van functies in- en rond het centrum van Delft is van groot
belang voor het karakter en het economisch functioneren van de stad en moet
worden behouden.
·
Het beleid moet mogelijkheden bieden voor het algemene streven van de
gemeente naar intensief ruimtegebruik.
In het nieuwe beleid wordt
op onderstaande punten afgeweken van de VNG-methode :
·
Aan de milieuaspecten van de VNG wordt toegevoegd het aspect “kwaliteit
van de leefomgeving” dat onder meer bepaald wordt door: sociale veiligheid,
groen, mobiliteit, levendigheid en economisch functioneren.
·
Het begrip bedrijven zoals gehanteerd in de VNG-methode, omvat een
veelheid aan activiteiten (voorbeeld: horeca, dienstverlening, zeepfabriek).
Voor bestemmingsplannen is het noodzakelijk in al die activiteiten een
onderscheid te maken naar het ruimtelijke effect van die activiteiten. Het
begrip “bedrijven” wordt daarom in bestemmingsplannen zodanig beperkt dat de
volgende functies binnen de bedrijfsbestemming niet zijn toegestaan: -
detailhandel
- kantoor
- agrarische doeleinden
- horeca en hotel
- maatschappelijke voorzieningen
Bovengenoemde functies
hebben in bestemmingsplannen een eigen bestemming waarbij de toegestane
activiteiten wel worden gekoppeld aan een maximaal toegelaten categorie.
·
Activiteiten vallend onder categorie 3 van de VNG-lijst zijn gesplitst
in categorie 3.1 activiteiten (minder milieubelastend) en categorie 3.2
activiteiten (meer milieubelastend).
·
De VNG-methode is alleen toegesneden op één type gebied te weten rustige
woonwijken; in het Delftse beleid wordt een onderscheid gemaakt in 8
gebiedstypen te weten: binnenstad, woonwijken 1 (vooroorlogse woonwijken), woonwijken
2 (naoorlogse woonwijken, voorzieningenwijken (voorbeeld: TU-gebied),
bedrijventerrein 1 (traditionele bedrijventerreinen als Schieoevers en DSM
Gist), bedrijventerrein 2 (voorbeeld: TNO), buitengebied en
hoofdinfrastructuur. Per gebiedstype wordt aangegeven welke categorieën
bedrijven wel en niet zijn toegestaan.
·
In de Delftse methodiek wordt met het instrument “vrijstelling”
juridisch waarborgen geboden om enerzijds milieugevoelige bestemmingen te
beschermen en anderzijds rechtszekerheid te bieden aan milieubelastende
bestemmingen. Een bedrijf dat zich mag vestigen moet er vanuit kunnen gaan dat
er geen onredelijke milieuhinder voor gevoelige bestemmingen door zijn
activiteiten zal ontstaan als aan alle wettelijke eisen wordt voldaan. In de
VNG-methode wordt uitgegaan van de gemiddelde milieuhinder voor een bepaalde
categorie. Het is mogelijk dat een bedrijfsactiviteit in het concrete geval
minder milieuhinder veroorzaakt dan in de VNG-methode wordt aangegeven. In die
situatie is geen reden om de bedrijfsactiviteit niet toe te staan. De
vrijstellingsregeling is een instrument om vestiging van genoemde
bedrijfsactiviteit toch toe te staan. Aan de vrijstellingsregeling zijn
voorwaarden verbonden, waaraan moet worden voldaan. Het bevoegd gezag kan vervolgens
beoordelen of mogelijke milieuhinder van de desbetreffende bedrijfsactiviteit
gelijk is aan, dan wel minder is dan de reeds in het bestemmingsplan toegestane
bedrijfsactiviteiten. Concreet betekent dit dat in bepaalde wijken categorie 1
en 2 activiteiten zonder meer zijn toegestaan en met een vrijstelling een
categorie 3.1 activiteit. Voorwaarde is dan dat de categorie 3.1 activiteit
niet meer milieubelasting voor de omgeving tot gevolg mag hebben dan een
categorie 2 activiteit.
Aan de vrijstellingsregeling worden de volgende
voorwaarden verbonden:
q de bedrijfsactiviteit mag
niet meer milieuhinder in de zin van
geluid, geur, stof en gevaar, veroorzaken dan de activiteit uit de hoogste
categorie die zonder vrijstelling is toegestaan. Dit dient aan de hand van
onderzoeksrapporten te worden aangetoond. Onderwerp van onderzoek is per
situatie verschillend. De onderzoeksplicht berust bij degene die baat heeft bij
de verlening van de vrijstelling. Dit kan zijn:
q
De milieubelastende partij
(bedrijf):
de aanvraag betreft bijvoorbeeld de vestiging van een bedrijf, de aanvrager
moet met onderzoeksgegevens aan tonen dat de activiteiten binnen de maximaal
toegestane milieuhinder blijven. Dit kan bijvoorbeeld door het treffen van
geluidwerende maatregelen aan gevels of door gebruik van minder
milieubelastende apparatuur.
q
De milieugevoelige partij
(wonen): bijvoorbeeld
een projectontwikkelaar die woningen wil realiseren NAAST een categorie 3.1
bedrijf moet met onderzoeksgegevens aantonen dat (al dan niet na het treffen
van maatregelen) de milieubelastende activiteit geen hinder in zijn
functioneren zal ondervinden als gevolg van de komst van de milieugevoelige
bestemming. De kosten van de eventueel te nemen maatregelen komen voor rekening
van degene die de milieugevoelige bestemming wil realiseren.
q
Vrijstelling mag slechts verleend worden als de kwaliteit van de
leefomgeving niet nadelig wordt beïnvloed. Die kwaliteit wordt gemeten aan de
hand van de volgende aspecten: sociale veiligheid, groen, mobiliteit,
levendigheid en economisch functioneren.
De gemeente zal al deze
aspecten noemen in de afweging van belangen als motivering van de vrijstelling.
Mogelijk wordt de kwaliteit op een enkel aspect verslechterd (bijvoorbeeld als
gevolg van het plan sneuvelt er groen ten behoeve van parkeergelegenheid) maar
wordt de sociale veiligheid, de levendigheid en het economisch functioneren
zodanig positief beïnvloed dat de facto niet gesproken kan worden van een
nadelige beïnvloeding van de kwaliteit van de leefomgeving.
Het
plangebied dat door het bestemmingsplan Noordwest, deelgebied 1 wordt
bestreken, valt in het nieuwe beleid onder het gebiedstype “Woonwijken 1”. Deze
benaming wordt gebruikt voor de vooroorlogse uitbreidingswijken die gelegen
zijn aan de randen van de oude binnenstad. In die randen trof men aanvankelijk
boerderijen en landhuizen aan en later aan het eind van de 19e en
begin van de 20e eeuw ook bedrijven in een veelheid aan typen.
Tot
medio 20e eeuw was de stadsuitbreiding nog kleinschalig. Die
uitbreiding bestond uit kleine woonwijken met bedrijvigheid. Naast kleine
arbeiderswoningen van vooral begin 20e eeuw treft men er ook ruimer
opgezette woonwijken van de jaren 30 aan. Gaandeweg werd de hele ring om de
binnenstad volgebouwd.
De
vooroorlogse wijken zijn gemengde wijken waarin naast woonbebouwing, parken,
winkels, horeca, recreatie en bedrijvigheid een plaatsvinden.
De bedrijvigheid in de wijken is onder te verdelen in aan de woonwijken
gerelateerde detailhandel, horeca, onderwijs- en gezondheidsfaciliteiten.
Daarnaast
bevinden zich in deze wijken enkele bedrijven (cat. 2 en 3) die niet direct aan
de wijk gerelateerd zijn, maar hier gevestigd zijn vanuit een historisch
gegroeide situatie. Ook dit type bedrijf kan hier gewenst zijn vanwege de
ligging aan de rand van de binnenstad en de goede ontsluiting van het
plangebied.
Toegestane bedrijvigheid
Gelet op het karakter van deze wijken en de uitgangspunten van het Delftse
beleid worden categorie 1 en 2 bedrijven zonder meer toegestaan. Categorie 3.1
bedrijven die een specifieke wijkfunctie invullen, zoals de horeca, of een
dienstverlenend karakter hebben en een goede ontsluiting nodig hebben, zoals
aannemers, worden gehandhaafd door middel van een vrijstellingsregeling.
Nieuwe vestiging van dergelijke activiteiten is mogelijk indien wordt
aangetoond dat de milieuhinder gelijk blijft of minder is dan de verwachte
milieuhinder van een categorie 2 bedrijf.
Bedrijven die vallen binnen categorie 1 en 2 van de LvB zijn toegestaan. Nieuwe
categorie 3.1 bedrijven in het plangebied worden toegestaan onder de
voorwaarden dat:
Nieuw
te bouwen milieugevoelige bestemmingen mogen direct naast een categorie 3.1
bedrijf indien dusdanige maatregelen worden getroffen dat het bedrijf niet meer
milieuhinder veroorzaakt dan een categorie 2 bedrijf (dus maximale
hinderafstand van 30 meter). Indien dit niet mogelijk is dient een minimale
afstand van 10 meter tussen dit type bedrijf en milieugevoelige bestemmingen in
acht te worden genomen.
De
afstand tussen de met maat bestemde categorie 3.2 en 4 bedrijven en
milieugevoelige bestemmingen die bij nieuwe vestigingen in acht moet worden
genomen bedraagt respectievelijk 30 en 50 meter.
In
het plangebied komen drie bedrijven voor die niet binnen het bovenstaande
beleid passen. Dit zijn een drukkerij, een steenhouwerij en een
reinigingsmiddelenhandel. Deze bedrijven zijn middels een maatbestemming in het
bestemmingsplan opgenomen. Dit betekent dat deze bedrijven niet vervangen mogen
worden door een willekeurig categorie 3 bedrijf maar slechts door een bedrijf
van hetzelfde type.
Delft
werkt met een bodemkwaliteitskaart waarin voor de gehele gemeente de globale
bodemkwaliteit is weergegeven. De kaart geeft alleen de diffuse bodemkwaliteit
in de eerste halve meter van de bodem weer. Volgens deze kaart is de
verwachting dat de gebieden ten noorden en oosten van het Agnetapark (net
buiten het plangebied) en langs de Buitenwatersloot matig verontreinigd zijn
met zware metalen en PAK (groen aangegeven, zogenaamde zone G3) Voor het deel
hiertussen geldt dat sprake is van lichte verontreinigingen met zware metalen
en PAK (geel aangegeven, zone G2). Het zuidelijk deel van het plangebied
(Westerkwartier) is een niet-gezoneerd gebied. Dit wil zeggen dat er van dit
gebied te weinig bodemkwaliteitsgegevens beschikbaar zijn om een indruk te
geven van de algemene bodemkwaliteit.
Naast
de diffuse bodemkwaliteit zijn er in het gebied verschillende locale
verontreinigingen bekend waarbij sprake is van matige tot sterke
verontreinigingen. Het betreffen over het algemeen slechts verontreinigingen
van beperkte omvang. Zover bekend geldt alleen voor het adres Spoorsingel 50-54
dat er sprake is van een geval van ernstige bodemverontreiniging met minerale
olie en aromaten in grond en grondwater (bevoegd gezag provincie Zuid-Holland).
Opgemerkt
wordt dat niet van alle verdachte puntbronnen de bodemkwaliteit in kaart is
gebracht. Dit betekent dat in een latere fase alsnog gevallen van
bodemverontreiniging aan het licht kunnen komen.
Uitsnede
bodemkwaliteitskaart
Met
het vaststellen van de nota “Duurzaam bouwen uit de steigers” blijft de
gemeente Delft duurzaam bouwen actief nastreven en heeft duurzaam bouwen tot
randvoorwaarde voor bouwen in Delft gesteld; vanaf het begin van het planproces
tot en met de beheersfase. Daarbij wordt voor woningbouw uitgegaan van de
Delftse duurzaam bouwenlijst, waarin naast een verplicht basisniveau een
bepaald percentage van de keuzefactoren toegepast moet worden. De invulling van
de maatregelen is aan de initiatiefnemer van de (ver)bouw. Per 1-1-2000 is de verordening Duurzaam
bouwen van kracht. De verordening is van toepassing op nieuw te bouwen
woningen. De aanvrager dient tegelijk met de bouwvergunning een duurzaam
bouwen-vergunning aan te vragen.
Voor
de utiliteitsbouw wordt uitgegaan van het Nationaal Pakket Utiliteitsbouw,
waarin naast het basisniveau (de ‘vaste’ maatregelen) tenminste 25% van de
variabele maatregelen moet worden toegepast. Zowel bij sloop, nieuwbouw als
renovatie moet rekening worden gehouden met Duurzaam bouwen. Voor renovatie is
het aan te bevelen het Nationaal Pakket Beheer als richtlijn voor het duurzaam
renoveren te laten dienen.
Bij
bebouwing en inrichting van de (openbare) ruimte moet zoveel mogelijk van
duurzaam materiaalgebruik worden uitgegaan. Ook deze maatregelen staan
beschreven in de Delftse duurzaam bouwen lijst.
De
Wet Geluidhinder kent drie geluidsbronnen: wegverkeerslawaai,
railverkeerslawaai en industrielawaai. In het plangebied bevinden zich
geluidszones van deze drie geluidsbronnen.
In
het kader van de Wet Geluidhinder bevinden zich langs alle wegen geluidszones,
met uitzondering van woonerven, 30 km/h gebieden en wegen waarvan op grond van
een door de gemeenteraad vastgestelde geluidsniveaukaart vaststaat dat de
geluidsbelasting op de gevels van aanliggende woningen op 10 meter uit de as
van de meest nabijgelegen rijstrook 50 dB(A) of minder bedraagt. De breedte van
een geluidszone is afhankelijk van het aantal rijstroken en de ligging van de
weg (binnen- of buitenstedelijk). In het binnenstedelijk gebied gelden
onderstaande zone-breedtes:
|
Aantal
rijstroken |
Zone-breedte
(m) |
|
1
of 2 |
200
|
|
3
of 4 |
350 |
Binnen
deze geluidszones moet aandacht worden besteed aan de geluidsbelasting op de gevel
van geluidsgevoelige bestemmingen (woningen, scholen voor basisonderwijs en
voortgezet onderwijs, instellingen voor hoger beroepsonderwijs, ziekenhuizen en
andere gezondheidszorggebouwen). De geluidbelasting moet worden bepaald voor de
nieuwe situatie. Op basis van de huidige verkeersintensiteiten en de te
verwachten verkeersproduktie is een prognose opgesteld voor de
verkeersintensiteiten in het jaar 2010-2011. Deze gegevens zijn het
uitgangspunt voor de berekening van de geluidsbelasting voor het jaar
2010-2011. De invoering van 30 km/u-zones in Delft zal in 2002 zijn afgerond
(Raadsbesluit).
In
de zin van de Wet Geluidhinder is in het plangebied sprake van een vorm van nieuwe situaties voor wegverkeerslawaai.
Het gaat dan om nieuwe geluidsgevoelige bestemmingen langs bestaande wegen. De
van toepassing zijnde voorkeursgrenswaarde is bij bouwlocaties volgens de Wet
Geluidhinder 50 dB(A). Voor binnenstedelijke wegen bedraagt de maximaal te
verlenen ontheffingswaarde voor nieuwe geluidsgevoelige bestemmingen 65 dB(A).
Wanneer bovendien sprake is van nieuwe woningen die bestaande bebouwing
vervangt, bedraagt de maximale ontheffing 70 dB(A).
Langs
iedere spoorweg bevindt zich een geluidszone, waarvan de breedte (gemeten vanaf
de buitenste spoorstaaf) is vastgesteld volgens het Besluit Geluidhinder
Spoorwegen. Binnen deze geluidszone gelden de bepalingen van de Wet
Geluidhinder. Voor de spoorweg Den Haag – Rotterdam (traject 550) geldt een
zone-breedte van 300 meter. Ook t.a.v. railverkeerslawaai is sprake van een nieuwe situatie indien nieuwe
geluidsgevoelige bestemmingen worden gerealiseerd in de zone van bestaande
spoorwegen. De Wet Geluidhinder hanteert als voorkeursgrenswaarde voor nieuwe
situaties 57 dB(A). Gedeputeerde Staten kunnen (onder bepaalde voorwaarden) een
hogere grenswaarde vaststellen, met een maximum van 70 dB(A).
Voor
de bepaling van de geluidsbelasting in de toekomstige situatie wordt momenteel
uitgegaan van het nieuwe Akoestisch Spoorboekje van de NS (ASWIN97, versie 1.0,
afkomstig van NS Technisch Onderzoek). Deze gegevens hebben betrekking op het
jaar 2010/2015.
In
het kader van herontwikkeling van het spoorgebied zal op termijn het spoor in
de binnenstad ondergronds worden aangelegd. Hiervoor is nog geen bestemmingsplan
vastgesteld. Daarom wordt voor dit bestemmingsplan uitgegaan van de huidige
situatie.
Het
plangebied grenst aan de noordzijde aan het industrieterrein DSM Gist/Calvé.
Rondom dit industrieterrein is in 1992 op grond van artikel 53 van de Wet
Geluidhinder een geluidszone industrielawaai vastgesteld. Deze zone is
gebaseerd op de destijds bestaande en vergunde geluidsuitstraling van de op het
terrein gevestigde bedrijven.
Op
grond van artikel 17, lid 2 Wet Geluidhinder is op 19 december 1997 door
Gedeputeerde Staten een saneringsprogramma vastgesteld om de geluidsbelasting
vanwege het industrieterrein op gevels van woningen van derden terug te
dringen. In het saneringsprogramma wordt aangegeven dat door de verminderde
geluidbelasting naar woningen, en rekening houdend met toekomstige
ontwikkelingen, wijziging (verkleining) van de geluidszone mogelijk is.
Op
2 november 1999 hebben burgemeester en wethouders een principe-besluit genomen
om de in het kader van de Wet Geluidhinder vastgestelde geluidszone
industrielawaai rond het industrieterrein te wijzigen en de aangepaste zone
geleidelijk op te nemen in alle betrokken bestemmingsplannen.
Met
betrekking tot de wijziging van de gehele zone is reeds in het kader van het
principebesluit advies gevraagd aan de Inspectie Milieuhygiëne, als bedoeld in
artikel 63 van de Wet Geluidhinder. Eind mei 2000 is zowel door DSM Gist als
door Van den Bergh Nederland (Calvé) aangegeven dat zij vooralsnog niet
instemmen met de voorgestelde wijziging. Voorgesteld werd een iets ruimere zone
in de bestemmingsplannen op te nemen.
Hierover heeft in augustus 2000 nader overleg plaatsgevonden met de
bedrijven, de zonebeheerder (provincie Zuid-Holland) en de gemeente Rijswijk.
Afgesproken is dat DSM Gist en Van den Bergh Nederland hun voorstel nader
zouden uitwerken in een akoestische rapportage. Half maart 2001 is namens de
bedrijven deze akoestische rapportage overlegd. Gelet op de uitgangspunten van
de rapportage en de verdere beperking van de mogelijkheden voor woningbouw in
geval van overname van het voorstel van DSM Gist en Van den Bergh Nederland, is
in het ontwerp-bestemmingsplan de zone-contour opgenomen, conform het
principebesluit van 2 november 1999.
Een
nieuwe ontwikkeling in het deelgebied, waarbij sprake is van het toevoegen van
geluidgevoelige bestemmingen en waarvoor de geluidssituatie relevant is, is de
locatie van de voormalige Openhofkerk aan de Ruys de Beerenbrouckstraat. Met de
bestemming “Gemengde doeleinden” wordt
hier aan geluidgevoelige functies o.a. woningbouw en kinderopvang
toegestaan.
Het
gebied bevindt zich in de geluidszone van de Ruys de Beerenbrouckstraat en in
de geluidszone industrielawaai van DSM-Gist. Voor deze locatie is het
akoestisch onderzoek naar het wegverkeerslawaai uitgevoerd (Akoestisch
onderzoek “Bestemmingsplan Noordwest deelgebied 1” opgesteld door de gemeente
Delft, d.d. september 2000 (zie bijlage). Hieruit blijkt dat de geluidbelasting
maximaal 61 dB(A) bedraagt.
De
bouwlocatie wordt tevens doorsneden door de nieuwe 50 dB(A)-contour
industrielawaai van DSM-Gist. Een deel van de te bouwen woningen heeft derhalve
een geluidbelasting van maximaal 55 dB(A) vanwege het industrieterrein. Echter, voor het akoestisch onderzoek is uitgegaan
van (inmiddels) verouderde plannen voor dit gebied. Een nieuw bouwplan voor de
locatie zal te zijner tijd opnieuw getoetst moeten worden aan het wegverkeers-
en industrielawaai. Indien sprake is van overschrijding van de
voorkeursgrenswaarde, moet een verzoek tot vaststelling hogere grenswaarde
vanwege wegverkeerslawaai en industrielawaai bij Gedeputeerde Staten worden
ingediend. Als ontheffingscriterium geldt dat de woningen dienen als opvulling
van een open plaats tussen bestaande bebouwing en deels als vervangende
bebouwing. Daarnaast dienen alle woningen te beschikken over één geluidluwe
gevel. Het besluit van Gedeputeerde Staten maakt deel uit van dit
bestemmingsplan.
Voor
diverse luchtvervuilende stoffen (o.a. stikstofdioxide (NO2), fijn
stof (PM10) en benzeen (C6H6)) zijn grenswaarden
vastgesteld die een wettelijke basis hebben gekregen in het Besluit
Luchtkwaliteit. Het
nieuwe Besluit is sinds 19 juli 2001 van kracht. De gemeente Delft heeft de taak om na te gaan of de normen voor deze
stoffen niet worden overschreden.
In
het plangebied zijn twee wegen met een verkeersintensiteit groter dan 6000
voertuigen per etmaal, namelijk de Ruys de Beerenbrouckstraat en de
Provincialeweg. Met behulp van de methodiek ‘Zoneren op basis van
luchtkwaliteit’ van de Provincie Zuid-Holland, is de maximale zone langs beide
wegen berekend.
|
Naam
weg |
Type
weg |
Maximale
zone |
Intensiteit
2010 |
|
Provincialeweg
nr. 15 |
Provinciale
weg |
30
meter |
32.200 |
|
Ruys
de Beerenbrouckstraat |
Gemeentelijke
weg |
20
meter |
13.600-14.700 |
Langs
de Ruys de Beerenbrouckstraat worden nieuwe, voor luchtkwaliteit gevoelige
bestemmingen (woningen) mogelijk gemaakt. Om
te bepalen of de grenswaarden voor stikstofdioxide, fijn stof en benzeen worden
overschreden, zullen in geval van planontwikkeling berekeningen moeten worden
uitgevoerd met het CAR II-model voor het jaar 2010. Een eerdere berekening
(n.a.v. studieschetsen voor deze locatie) liet zien dat er, naar
verwachting, vanuit het oogpunt van
luchtkwaliteit geen beperkingen zullen zijn voor de ontwikkeling van dit
gebied.
In
de vierde Nota Waterhuishouding wordt de nadruk gelegd op gezonde duurzame
watersystemen met als aandachtspunt: duurzaam stedelijk waterbeheer. Dit is
verankerd en verder uitgewerkt in het provinciaal beleid (Beleidsplan Milieu en
Water van 2000 en de nota ‘Bruisend Water’ van1999) en het beleid van het
hoogheemraadschap van Delfland (Waterbeheersplan 1999 – 2003). Het beleid van het
hoogheemraadschap is primair gericht op het vergroten van de bergingscapaciteit
(ABC-Delfland: Water binnen veilige kaders van juli 2000) en het verbeteren van
de waterkwaliteit in het stedelijk gebied.
Het
“waterplan Delft: Een blauw netwerk” van april 2000 – een gezamenlijk plan van
de gemeente Delft en het hoogheemraadschap van Delfland - onderkent het belang
van water in de stad als element in een duurzame stedelijke ontwikkeling. In
dit plan wordt onder meer aandacht besteed aan het afkoppelen van verhard
oppervlak, de realisatie van gebiedseigen watersystemen, het verbeteren van de
waterkwaliteit en de inrichting van natuurvriendelijke oevers.
Het
aandeel water in het plangebied is beperkt. Het belangrijkste oppervlaktewater
in het gebied is de Buitenwatersloot, welke het plangebied van west naar oost
doorkruist. De Buitenwatersloot behoort tot het boezemstelsel. Deze watergang
heeft een afwaterende en een watertoevoerende functie alsmede een recreatieve
vaarfunctie en een afmeerfunctie voor recreatievaartuigen.
Naast de Buitenwatersloot zijn er nog enkele kleine waterpartijen in het
plangebied aanwezig, namelijk: de watergangen op het terrein van DSM Gist aan
de noordzijde van het plangebied, de drie vijvers in het Agnetapark (de
Spoorvijver aan de J.C. van Markenweg, de vijver bij de Zocherweg en de Vijver
Noord en Zuid ) en de vijvers/waterpartijen aan de Van Houtenstraat, Jacoba van
Beierenlaan, Van Bleijswijkstraat en de Laan van Vollering. De vijvers hebben
de functie stedelijk water. De vijvers worden beïnvloedt door lozingen vanuit
het gemengde rioleringsysteem (overstortlocaties). De vijvers dragen bij aan de
waterberging en aan de drooglegging.
Waterpeilen:
Volgens
de vigerende peilbesluiten zijn de volgende peilen voor de diverse watergangen
vastgesteld:
|
Watergang |
Peil |
|
Watergangen
terrein DSM Gist |
1,10
m – NAP |
|
Spoorvijver,
Agnetaparkvijver en Vijver - Zuid en Noord |
1,10
m – NAP |
|
Van
Houtenstraat |
1,30
m – NAP |
|
Buitenwatersloot |
0,40
m – NAP |
|
Jacoba
van Beierenlaan, Van Bleijswijkstraat en de Laan van Vollering |
1,50
m – NAP |
Voor
de westelijke waterpartijen (Van Bleijswijkstraat en Laan van Vollering) is een
inlaatwerk ter hoogte van de Van Bleijswijkstraat gerealiseerd. Voor de de
watergangen op het terrein van DSM Gist aan de noordzijde van het plangebied en
de drie vijvers in het Agnetapark bevindt dit inlaatwerk zich op het terrein
van DSM Gist.
In
de Buitenwatersloot bevindt zich een schotbalkkering, deze heeft als doel om de
boezem te kunnen compartimenteren in geval van calamiteiten.
Beide
zijden van de Buitenwatersloot en de Spoorsingel zijn boezemkade en dienen op
een hoogte van minimaal 0,10 m + NAP gehouden te worden.
In
dit gebieden bevinden zich twee rioolgemalen (Krakeelpolderweg en Agnetapark)
en een gecombineerd hemelwater- en vuilwatergemaal (Van Houtenstraat). In het
gebied liggen een aantal persleidingen, te weten:
·
Gemaal Krakeelpolderweg - Chirurgijnstraat
·
Gemaal van Houtenstraat naar de Kampveldweg (hemelwater en vuilwater)
·
Gemaal van Houtenstraat - Hoek Westplantsoen-Ruys de Beerenbrouckstraat
·
Kampveldweg - Hoek Westplantsoen-Ruys de Beerenbrouckstraat
·
DSM Gist - W.H. van Leeuwenlaan - Hoek Westplantsoen-Ruys de
Beerenbrouckstraat
Waterkwaliteit
In
het “waterplan Delft: Een blauw netwerk” van april 2000 is als ambitieniveau
voor de watergang aangegeven: water als cultuurgoed. Dit houdt in dat het
accent ligt op het zichtbaar maken van de cultuurhistorische en stedelijke
identiteit. De watergangen mogen matig eutroof zijn en moeten er aantrekkelijk
uitzien. Het water is voorts visrijk, stinkt niet en is plaatselijk opgesierd
met water- en oeverplanten.
De gemeentelijke riolering moet voldoen aan de basisinspanning en het
waterkwaliteitsspoor. Daartoe moeten de emissies vanuit de riolering worden
gereduceerd. Als er mogelijkheden zijn, bijvoorbeeld bij renovatie of
herstructurering van de wijk, wordt regenwater van het riool afgekoppeld. Daar
waar dit mogelijk is, wordt de hoeveelheid verharding beperkt.
Waterberging
In
het gebied is weinig oppervlaktewater aanwezig (<1%). Dempen van watergangen
en vijvers is niet toegestaan. Waar mogelijk moet meer open water worden
gerealiseerd.
De
kansen voor het realiseren van extra waterberging binnen het plangebied zijn –
zonder ingrijpende maatregelen - beperkt. Mogelijkheden zijn er bij de vijver
aan de Van Houtenstraat en (net buiten het plangebied) in het Wilhelminapark en
langs de Weteringenlaan. Onderzocht zal worden welke maatregelen genomen moeten
worden. Daarbij zal ook worden bezien welke mogelijkheden er zijn voor de
realisatie van natuurvriendelijke oevers.
Het
gebied ten oosten van het plangebied – de Spoorzone - wordt gereconstrueerd. In
dit gebied wordt nadrukkelijk aandacht besteed aan het geven van ruimte aan
water. In het algemeen wordt gesteld dat indien zich mogelijkheden voordoen
binnen het plangebied zelf, bijvoorbeeld bij grootschalige renovatie of
herstructurering, er ruimte gegeven zal worden aan water.
In
de huidige situatie zijn – ondanks de geringe oppervlakte open water – geen
grote problemen geconstateerd met de waterhuishouding. Dit komt mede door de
goede waterafvoerende functie van de Buitenwatersloot. Voor een duurzaam
waterbeheer, waarbij waterkwantiteitsproblemen niet naar elders worden
afgewenteld, is het echter wel noodzakelijk dat het waterbergend vermogen in
het plangebied wordt uitgebreid. De gemeente zal de komende jaren in overleg
met het hoogheemraadschap van Delfland onderzoeken op welke wijze meer
waterberging kan worden gecreëerd binnen het plangebied en/of de
waterstaatkundige eenheid. Vervolgens zullen afspraken worden gemaakt over de
wijze van realisering.
Binnen
het uitvoeringsverband van het Waterplan Delft
“Een blauw netwerk” wordt dit jaar een analyse uitgevoerd van de
oppervlaktewatersystemen in Delft. Een van de doelstellingen van de analyse is
het in beeld brengen van de bergingsbehoefte en de mogelijkheid voor het
realiseren van extra berging. Daarbij zal zoveel mogelijk gekeken worden naar
principevolgorde: berging in het plangebied, polder of compensatie elders.
In
deze analyse ligt de nadruk op de polders van Delft. De analyse moet er wel in
voorzien dat er een integraal maatregelenpakket wordt opgesteld, dat rekening
houdt met de bergingsbehoefte van Delft en de door het hoogheemraadschap van
Delfland vastgelegde bemalingscapaciteit.
Het
plangebied van Noordwest, deelgebied I wordt doorsneden door de Ruys de
Beerenbrouckstraat en Hof van Delftlaan en (gedeeltelijk) begrensd door
Krakeelpolderweg, Westplantsoen en Westlandseweg. Deze wegen vormen belangrijke
groene structuurverbindingen op stadsniveau en zijn opgenomen binnen de ecologische
hoofdstructuur van Delft, als vastgelegd in de nota Ruimte voor Natuur (1994),
de concept-nota Ecologische Hoofdstructuur (EHS) en het Bomenbeleidsplan (zie
ook paragraaf III.2.5).
Uitgangspunt
voor de ecozones is de afstemming van inrichting en beheer op zowel de droge
als natte verbindingen tussen gebieden. Hierbij moet gestreefd worden naar het
behoud en versterking van de ecologische betekenis door o.a. bij
inrichtingsplannen rekening te houden met het bundelen van gescheiden
rijstroken en het realiseren van corridors die de barrièrewerking verminderen.
De bijbehorende natuurdoeltypen voor de verbindingszones zijn natuur van hooi-
en weiland, natuur van ruigte en struweel en boombeplanting. Als doelgroepen
wordt uitgegaan van plantensoorten behorend tot het glanshaververbond en
kamgrasweiden, AA-plantensoorten, hoger opgaande meerjarige plantensoorten,
inheemse struiken en bomen en voor de fauna graslandvlinders, kleine zoogdieren
en struweelvogels. Een nadere beschrijving per zone inclusief doelsoorten is
opgenomen in de nota EHS.
Op
wijkniveau vormen de Hugo de Grootstraat, Adriaan Pauwstraat, Willemstraat en
Van de Spiegelstraat belangrijke groene lijnen voor wat betreft bomen. Ook
vormt het gebied langs de Meeslaan een belangrijke groenzone als buffer tussen
het bedrijventerrein van DSM-Gist en de woonwijk. Bekeken wordt in hoeverre
deze zone deel uit kan gaan maken van de ecologische hoofdstructuur.
De
Buitenwatersloot maakt deel uit van de natte structuur, waarbij specifieke
bescherming geldt voor de muurplanten door bij restauratie gebruik te maken van
kalkhoudende mortel. Voor de overige natte structuren wordt voor zover mogelijk
gestreefd naar een natuurvriendelijke inrichting als opgenomen in het
gemeentelijk Waterplan 2000. In de nog in voorbereiding zijnde Oeverbeheernota
zal een en ander verder worden uitgewerkt.
Het
Agnetapark vormt een belangrijk landschappelijk element in het noorden van het
plangebied en is opgenomen als ecologisch kerngebied. Dit houdt in dat
continuïteit in natuurbehoud en –ontwikkeling de hoogste prioriteit heeft,
gedeeltelijk afgestemd op recreatief gebruik. Het aanwezige water in het park
draagt bij aan de leefbaarheid en ruimtelijke kwaliteit met het ambitieniveau
voor de waterkwaliteit van belevingsgoed water (Waterplan 2000). Versterking
van bestaande flora en fauna staat hier centraal. De status kerngebied houdt in
dat het gebied beschermd is tegen ongewenste ingrepen evenals de in het park
aanwezige monumentale bomen.
Externe
veiligheid gaat in op de kans dat er calamiteiten optreden ten gevolge van
ongevallen bij de opslag en het transport van gevaarlijke stoffen. Hierbij
wordt onderscheid gemaakt tussen individueel risico en groepsrisico. Het
individueel risico van een bepaalde activiteit is de kans dat per jaar op een
bepaalde plaats een continu daar aanwezig gedacht persoon die onbeschermd is,
komt te overlijden als gevolg van een ongeluk met die activiteit. Het
groepsrisico is de kans dat per jaar in één keer een groep mensen komt te
overlijden bij een ongeval met gevaarlijke stoffen.
In
het plangebied zijn geen risicovolle bedrijven. In de directe omgeving van het
plangebied bevindt zich het biotechnologisch productiebedrijf DSM-Gist. In het
plangebied zijn geen transportroutes voor gevaarlijke stoffen over de weg
aanwezig. Wel vindt langs het plangebied transport van gevaarlijke stoffen over
het water en het spoor plaats. Hiervoor dient een risico-inschatting te worden
gemaakt voor zowel het individuele risico als het groepsrisico. Voor beide
soorten risico’s zijn aparte normen.
Bij
DSM-Gist bevinden zich diverse opslagen met verschillende gevaarlijke stoffen.
Hierover is informatie ingewonnen bij de Provincie Zuid Holland (bevoegd gezag
voor de Wet Milieubeheer). De provincie geeft aan dat voor dit bedrijf, op
grond van de aanwezige gevaarlijke stoffen, geen risico-analyse hoeft te worden
opgesteld. De aanwezigheid van DSM Gist levert zodoende geen beperkingen op
voor de planvorming.
Over
het water vindt vervoer van gevaarlijke stoffen plaats. De grens van de
risico-contouren valt samen met de waterkant en dit levert zodoende geen
beperkingen op voor de planvorming.
Over
de spoortrajecten Schiedam-Delft en Delft-Haarlem vindt vervoer van gevaarlijke
stoffen plaats. Ten behoeve van de risico-inschatting is gebruik gemaakt van de
inventarisatie van de provincie Zuid-Holland over de risico’s van het
spoortransport van gevaarlijke stoffen over de vrije baan (dus geen
emplacementen). De resultaten van de inventarisatie zijn weergegeven in het
“Sectordocument Externe Veiligheid 1998 van de Provincie Zuid-Holland. De
berekeningen hiervoor zijn gebaseerd op transportgegevens uit 1992. Uit dit
sectordocument blijkt dat de grens van het individueel risico samenvalt met de
grens van het spoor. Dit levert geen beperking op voor de planvorming.
Tevens
blijkt dat de contour van het toegestane groepsrisico over het plangebied
loopt. Het groepsrisico langs de betreffende spoorbaan bedraagt 0.5 – 2 maal
het referentieniveau. De contour als gevolg van het groepsrisico levert binnen
een zone van 200 meter, gemeten vanaf de rand van het spoor, wel beperkingen op
voor het plangebied. Deze beperkingen hebben betrekking op de maximale
bebouwingsdichtheid of een maximale woningmassa dan wel een maximaal bouwvolume
per hectare voor kwetsbare bestemmingen. Onder kwetsbare bestemmingen worden
functies verstaan die gevoelig zijn voor risico’s. Het betreft functies of
objecten waar zich gedurende langere tijd personen kunnen bevinden, zoals
woonwijken, kantoren, scholen, hotels en bedrijven.
Op
dit moment zijn te weinig exacte gegevens bekend over de hoeveelheden van
gevaarlijke stoffen die over het spoor worden vervoerd en daardoor over het
exacte groepsrisico en de maximale bebouwingsdichtheid. Inmiddels is door de
provincie Zuid-Holland een risico-atlas uitgegeven waarin deze gegevens zijn
verwerkt. Om de toelaatbaarheid van een nieuwe ontwikkeling te kunnen
beoordelen, dient er een groepsrisico-berekening plaats te vinden. De uitkomst
kan dan aan de oriënterende waarde worden getoetst.
Burgemeester
en wethouders van Delft hebben op 4 juni 2002 de beleidsnota “Handhaving
bestemmingsplannen, beleid en uitvoering” vastgesteld.
De
nota beperkt zich tot handhaving van die bestemmingsplanvoorschriften die niet
op grond van andere regimes (bijvoorbeeld milieuwetgeving) kunnen worden
gehandhaafd.
Het
volledig handhaven van regelgeving in bestemmingsplannen is een ondoenlijke en
onbetaalbare zaak.
Dit
betekent dat sommige aspecten van het ruimtelijk beleid stringenter zullen
worden gehandhaafd dan andere aspecten. Dit vergt een prioriteitsstelling. Bij
de prioriteitsstelling is als uitgangspunt genomen de vraag welke schadelijke
gevolgen absoluut voorkomen moeten worden. Prioriteit wordt bepaald door twee
factoren: de ernst van de overtreding (schade) en de kans dat die overtreding
zich zal voordoen. Het gemeentelijk grondgebied is op basis van specifieke
kwaliteiten van een gebied onderverdeeld in type plangebieden. Voorbeelden
hiervan zijn: bedrijventerreinen, woonwijken, en buitengebieden. De kans dat
een overtreding zich zal voordoen is voor een belangrijk deel afhankelijk van
het type plangebied. Om die kans op overtreding inzichtelijk te maken is daarom
in het handhavingsbeleid gewerkt met type
plangebieden. Het plangebied dat door het bestemmingsplan Noordwest,
deelgebied 1 wordt bestreken is aangemerkt als “Woonwijken”.
Schade
als gevolg van overtreding van bestemmingsplanvoorschriften kan onderverdeeld
worden in :
-
milieu schade (water en ecologie)
-
ruimtelijke ordeningsschade (schade aan de zichtkanten
van de stad, aantasting van bezonning, zicht en privacy, geur, stank en
geluidsoverlast) en
-
economische schade
In
de prioriteitsstelling van het handhaven van bestemmingsplanvoorschriften is
het voorts van belang dat onderscheid wordt gemaakt in voorschriften die het gebruik van gronden en die
voorschriften die de bebouwing van
gronden reguleren. Soms zal strijdig gebruik tot schade lijden (bijvoorbeeld
ongewenste vestiging van een bedrijf in de binnenstad), in een ander geval is
het juist de overtreding van bebouwingsvoorschriften die tot schade lijdt
(plaatsing van een gebouw in de voortuin).
De
vetgedrukte items zijn de peilers waarop de structuur van het ruimtelijk handhavingsbeleid
is opgesteld. De opbouw van de structuur heeft uiteindelijk geleid tot een
matrixfiguur waarin conform de doelstelling van het beleid een concreet en
helder overzicht wordt geboden in de bestemmingsplanvoorschriften die in de
handhaving prioriteit verdienen.
Prioriteitsstelling
vindt plaats aan de hand van toekenning van cijfers in een glijdende schaal van
1 tot 3 punten, waarbij geldt:
Cijfer
1: intensieve handhaving
Cijfer
2: reguliere handhaving
Cijfer
3: incidentele handhaving en handhaving op
signalen van buiten
Het
opsporen van illegale situaties kan op meerdere manieren plaatsvinden. Het
periodiek houden van luchtfotovergelijkingen is een goede methode om illegale
bouwwerken op te sporen. Voor het opsporen van illegaal gebruik is het
raadplegen van openbare bronnen, zoals het register van de kamer van
Koophandel, internet, en gemeentelijke dossiers een betere methode. Steeds zal
de overtreding ook feitelijk (=ter plaatse) geconstateerd moeten worden. In een
aantal gevallen kan een overtreding slechts worden opgespoord door controles op
straat.
Intensieve handhaving betekent dat aan het genoemde beleidsveld een hoge
prioriteit wordt gegeven. Dit betekent dat de intentie er is om alle
overtredingen van deze bepalingen op te sporen en aan te pakken. Voor deze
zaken zal derhalve de meest stringente vorm van toezicht worden gekozen. Indien
luchtfotovergelijking het geëigende middel is, dan zal dit jaarlijks moeten
plaatsvinden. Ook gericht dossieronderzoek en het raadplegen van andere openbare
bronnen zal tenminste jaarlijks moeten plaatsvinden. Vervolgens zullen alle
adressen die aan de hand van het raadplegen van deze bronnen vragen oproepen
ter plaatse moeten worden bezocht om ook ter plaatse de feitelijke constatering
te kunnen doen en de overtreder hiermee te confronteren.
Reguliere handhaving betekent het raadplegen van dezelfde bronnen als
hierboven maar in een lagere frequentie van circa eenmaal per twee jaar. Hier
bestaat niet de intentie om alle illegale zaken op te sporen. Wel zal de
pakkans hoog genoeg moeten zijn om hiervan een preventieve werking te laten
uitgaan.
Incidentele handhaving tenslotte is de werkwijze waarop hoofdzakelijk
reactief (na klachten van belanghebbenden) wordt gehandhaafd. Het betreft dan
altijd zaken waarbij geen direct algemeen belang is betrokken maar waar het
belang van de handhaving vooral is gelegen in de bescherming van de
leefomgeving van derden.
VI.2. Beleid
Het
bestemmingsplangebied Noordwest, deelgebied 1 valt onder het gebiedstype
“woonwijken”. In de nota wordt voor dit gebiedstype de onderstaande algemene
beleidslijn uiteengezet:
Milieu:
Water : In de directe ring rond
de binnenstad is de bebouwingsdichtheid in de woonwijken groot. In de wat
verder van die ring afgelegen moderne woonwijken geldt dat in mindere mate.
Vanwege de forse problemen met water heeft het zoveel mogelijk vrijhouden van
bebouwing van binnenterreinen hoge prioriteit.
Ecologische hoofdstructuren: In deze woonwijken zijn
met name langs de hoofdwegenstructuur belangrijke ecologische zones gesitueerd.
De kans op aantasting wordt gering geacht omdat het openbare en goed zichtbare
gebieden betreft. Volstaan kan worden met reguliere handhaving.
Ruimtelijke Ordening:
Zichtkanten van de stad: Het instandhouden van het
zichtkanten van de stad heeft prioriteit. De kans op aantasting van
stedebouwkundige hoofdstructuur of van de openbare ruimte is echter gering.
Mocht een dergelijke overtreding zich voordoen dan is de kans dat dit wordt
opgemerkt groot. Reguliere controle volstaat hier.
Aantasting van bezonning,
zicht en privacy door overtreding van bebouwingsvoorschriften voor tuinen is moeilijk te
handhaven door reguliere controle omdat die overtreding niet zichtbaar is vanaf
de openbare ruimte. De kans dat dergelijke overtredingen zich ongemerkt
voordoen is gering. Getroffen omwonenden zullen naar verwachting hier melding
van maken. Volstaan kan worden met incidentele controle en handhaving in
reactie op meldingen.
Stank, geluid- en
stofoverlast
als gevolg van overtredingen van gebruiksvoorschriften van het
bestemmingsplannen zullen zich ook nauwelijks ongemerkt voordoen. Ook hiervoor
geldt dat volstaan kan worden met incidentele controle.
Economie:
De
kans op economische schade in woonwijken wordt gering geacht omdat de
economische belangen bij vestiging van bedrijven in dergelijke gebieden gering
is. Volstaan kan worden met incidentele handhaving.
Milieu: Water (g/b) 1
Ecologische
structuur (g/b) 2
Ruimtelijke
ordening: Stedebouwkundige
hoofdstructuur en openbare ruimten (b) 2
Bezonning,
zicht en privacy (g) 3
Stank, geluid
en stofoverlast (g) 3
Economie:
Algemeen (g) 3
b = bebouwing
Meer
specifiek geldt voor het plangebied Noordwest deelgebied 1 dat hier anders dan
in sommige woonwijken, sprake is van een hoge bebouwingsdichtheid.
De
mogelijkheid tot het openhouden van binnenterreinen is echter beperkt. Het
bestemmingsplan is aangepast aan de komende wijziging van de Woningwet die het
vergunningvrij bebouwen van binnenterreinen mogelijk maakt tot een percentage
van 50% van het totale oppervlak. Gelet op de algemene prioriteitstelling
betekent dit dat toezicht op vrij van bebouwing houden van resterende ruimte
van groot belang is. Artikel 13 van de voorschriften zal daarom stringent
moeten worden gehandhaafd.
Voorkomen
van schade aan de ecologische hoofdstructuur en de stedebouwkundige
hoofdstructuur hebben reguliere prioriteit. Dit betekent dat met een
tweejaarlijkse controle de volgende voorschriften (regulier) worden
gehandhaafd: lid 2 van de artikelen 3, 4, 5, 6, 7, 8, 9, 10, 11, 14, 16, 19 en
20.
Mede
als gevolg van de hoge bebouwingsdichtheid wordt in dit plangebied nu al meer
gehandhaafd dan in andere gebieden. Uitvoering van het beleid als uiteengezet
in dit hoofdstuk zal naar verwachting dan ook binnen de bestaande capaciteit
kunnen plaatsvinden.
VII. Toelichting bij de planvoorschriften
In
de inleiding van het bestemmingsplan is als doel van het nieuwe bestemmingsplan
al genoemd dat gestreefd wordt naar meer eenvoud en uniformiteit in
voorschriften. In dit bestemmingsplan is uitgegaan van de voorschriften zoals
die de laatste jaren gebruikelijk zijn in Delft, maar is tevens getracht in te
spelen op gebiedseigen kenmerken. Het bestemmingsplan betreft een gebied waarin
voornamelijk gewoond wordt en waar het bestemmingsplan voorziet in het beheer
van bestaand gebruik en bestaande bebouwing.
Veel
van de voorschriften zijn overeenkomstig andere bestemmingsplannen en behoeven
slechts een korte toelichting. De in dit bestemmingsplan voorgestelde regeling
met betrekking tot dakopbouwen, dakkapellen en dergelijke wijkt af van huidige
regelingen en zal nader worden toegelicht.
De
in het plangebied aanwezige woningen zijn in de bestemming “Woondoeleinden”
geregeld, waarbij zoals gebruikelijk sprake is van een ruime omschrijving
waarin ook niet-woonfuncties passen. Hierbij valt te denken aan beperkte
uitoefening van bedrijf of kantoor aan huis en aan huis gebonden beroepen.
Hierbij is als beperking opgenomen dat de woonfunctie overwegend gehandhaafd
moet blijven (niet-woonfuncties tot maximum van 30%) en dat geen hinder voor de
omgeving veroorzaakt mag worden.
De
uitbreidingsmogelijkheden van de woning zijn in dit bestemmingsplan volgens een
nieuwe methode geregeld. Hierover later meer. Voor vergroting van de woning via
aanbouwen aan de achtergevel biedt het plan ruimte binnen de bestemming “tuin”.
Ook
niet woon-functies komen in het plangebied voor. In sommige gevallen zijn deze
functies onderdeel van de bestemming "Woondoeleinden” zoals hierboven
omschreven. Vaak echter is ervoor gekozen deze functies op te nemen in de
bestemming “Gemengde doeleinden”. In deze gebieden is sprake van een dusdanige
concentratie van niet-woonfuncties (vaak wel met wonen erboven) dat dit niet
meer past binnen de bestemming “Woondoeleinden”. Bovendien gaat het hier om
gebieden, waar vanuit de gemeente een zekere multifunctionaliteit wordt
nagestreefd (bestaande buurtwinkelcentra, Buitenwatersloot en Spoorsingel).
Binnen de bestemming “Gemengde
doeleinden” is het toegestaan de begane grond volledig in gebruik te nemen ten
behoeve van bedrijven (cat. 1 LvB), kantoren, dienstverlening, detailhandel,
ruimte voor praktijkuitoefening en maatschappelijke doeleinden. Op de 2de
bouwlaag en hoger mag worden gewoond, zoals hierboven omschreven.
De
in het plangebied aanwezige scholen, kerken, zorgvoorzieningen en politie
vallen onder de bestemming “Maatschappelijke doeleinden”. Voor de Brandweer is
een maatbestemming opgenomen.
De
bestemmingen “Detailhandel”, “Kantoren”, “Bedrijfsdoeleinden” komen slechts op
enkele plaatsen in het plangebied voor, waar het gaat om solitaire
winkelvoorzieningen en bedrijven (dus niet in combinatie met wonen).
Op
enkele plaatsen komt de bestemming Horeca, categorie 1 voor. Dit zijn over het
algemeen cafés. Voor de in het plangebied aanwezige hotels is een
maatbestemming opgenomen.
De
in het plangebied aanwezige structurele groengebieden en water zijn bestemd als
“Openbaar groen” en “Water”. Binnen de bestemming “Openbaar groen” zijn
beperkte bouwmogelijkheden aanwezig. De speelplaatsen en trapveldjes zijn op de
plankaart met een aanduiding aangegeven. Bebouwing hier mag alleen plaatsvinden
ten dienste van de functie. Voor het Agnetapark is een aparte bestemming Park
opgenomen. Aan die bestemming is een aanlegvergunning gebonden om zo het park
extra te beschermen tegen ongewenste aantastingen.
De
doorgaande wegen op stad- en wijkniveau (Westlandseweg, Ruys de
Beerenbrouckstraat) hebben de bestemming “Verkeersdoeleinden II”. De overige
wegen in het plangebied vallen binnen de aangewezen 30 km/zones waarin de
verblijfsfunctie centraal staat. Deze gebieden vallen binnen de bestemming
“Verkeersdoeleinden I”. Hoewel ook de Krakeelpolderweg, Hugo de Grootstraat en
Adriaan Pauwstraat binnen het verblijfsgebied vallen krijgen delen van deze
wegen toch de bestemming “Verkeersdoeleinden II”, vanwege de busroutes door
deze straten. Het straatprofiel moet hiervoor geschikt zijn. De inrichting van
een straatprofiel is op de plankaart niet vastgelegd. Herinrichting van een
straat zal in overleg met omwonenden en belanghebbenden plaatsvinden.
Per
1 oktober 2000 is het verbod op prostitutie geschrapt uit het Wetboek van
Strafrecht. Het reguleren van prostitutie is een taak geworden van gemeenten.
In Delft zijn voor zover bekend geen seksinrichtingen aanwezig. Uitgangspunt van
het prostitutiebeleid in Delft is continuering van de bestaande situatie. Omdat
een algemeen verbod op het vestigen van seksinrichtingen juridisch niet
aanvaardbaar wordt geacht, heeft Delft besloten maximaal 2 inrichtingen binnen
de gehele gemeente toe te staan. Daartoe is voor alle bestemmingsplannen binnen
de bestemming “bedrijfsdoeleinden” een verbod opgenomen voor het vestigen van
seksinrichtingen met een mogelijkheid om onder voorwaarden vrijstelling te
verlenen voor maximaal 2 seksinrichtingen.
Ten
oosten van het plangebied, recht tegenover de Van Heemstrastraat staat de nog
enige in Delft resterende molen “ Molen de Roos”. Deze molen is nog in functie.
Om de windvang van de molen veilig te stellen, is een molenbeschermingszone op
de plankaart en in de voorschriften opgenomen.
De
archeologische waarden worden beschermd middels een aanlegvergunningenstelstel.
De (potentiële) monumenten hebben op verzoek van de Rijksdienst voor Monumenten
een aanduiding op de plankaart gekregen zodat bij voorkomende bouwaanvragen
direct uit de plankaart blijkt dat er sprake is van een (potentieel) monument.
VII.4. Wijzigingen Woningwet
De
komende wijziging op de Woningwet heeft als belangrijke consequentie dat het
onderscheid tussen vergunningsplichtige, meldingsplichtige en vergunningsvrije
bouwwerken plaatsmaakt voor een tweedeling in vergunningsplichtig of
vergunningsvrij. Veel bouwwerken die nu nog vergunningsplichtig zijn, zullen na
inwerkingtreding van de nieuwe Woningwet vergunningsvrij worden.
Vergunningsvrij houdt in dat er niet meer getoetst wordt aan de bepalingen van
het bestemmingsplan. Het heeft daarom geen zin dergelijke bouwwerken in het
bestemmingsplan op te nemen. Het bestemmingsplan is aan de voorgenomen
wijziging aangepast.
Samenhangend
met deze ontwikkelingen in de Woningwet worden gemeenten verplicht gesteld een
welstandsbeleid te formuleren. De hierin op te nemen richtlijnen moeten een aanvulling vormen op hetgeen in het
bestemmingsplan wordt geregeld.
In
dit bestemmingsplan is uitgegaan van een andere regeling voor uitbreidingen aan
het hoofdgebouw dan tot nu toe gebruikelijk is. Gebruikelijk is het werken met
op de plankaart aangegeven goothoogtes, waarboven een ‘kapvormig’ bouwdeel is
toegestaan met een bepaalde maximale hellingshoek en een bepaalde maximale
nokhoogte. In de praktijk blijkt dit
nogal eens tot problemen te leiden. Vaak is de ruimte binnen deze regeling
zodanig dat dakopbouwen mogelijk zijn, die vanuit het oogpunt van
beeldkwaliteit niet gewenst zijn of die voor omwonenden tot overlast leiden. De
positie van Welstand is in deze gevallen ook omstreden, omdat Welstand binnen
het in het bestemmingsplan toegestane bouwvolume over verschijningsvorm mag
adviseren, maar het toegestane bouwvolume niet wezenlijk mag beperken.
Voorts
dwingt de bestaande regeling bewoners die hun woning willen uitbreiden met een
dakopbouw om een bouwwerk te realiseren met tenminste 2 schuine zijden;
“rechte” dakopbouwen zijn veelal niet toegestaan.
Het
is niet wenselijk dat het bestemmingsplan eventuele volumevergrotingen te veel
beperkt. Bewoners moeten de kans krijgen hun woning binnen vooraf omschreven
maxima uit te breiden. Daarbij is in bepaalde gebieden meer mogelijk dan in
andere gebieden, afhankelijk van opzet en uitstraling van het gebied.
In
dit bestemmingsplan is daarom gekozen voor een gebiedsgerichte benadering,
waarbij onderscheid is gemaakt in “minder gevoelige” blokken en “meer
gevoelige” blokken. De minder gevoelige blokken worden op de plankaart
aangeduid met een A. Het gaat om blokken die een grote diversiteit kennen aan
aan- en opbouwen. De meer gevoelige blokken worden aangeduid met een B. Het
betreft die blokken aan straten die een uniform beeld kennen en waar de
aantasting van dat beeld, in ieder geval aan de voorzijde tot nu toe beperkt is
dan wel ontbreekt. Ook zijn bouwblokken langs de belangrijkste structuurlijnen
in de stad aangeduid als categorie B blokken. Voor categorie A blokken zijn
woninguitbreidingen die zichtbaar zijn vanaf de openbare ruimte aan minder
voorwaarden gebonden dan de uitbreidingen aan categorie B blokken.
Al
bij voorbaat wordt in dit bestemmingsplan meer vrijheid gegeven voor bepaalde
zaken, zoals bijvoorbeeld dakkapellen. Ook dakopbouwen worden in veel gevallen
in ieder geval procedureel vereenvoudigd, door ze als binnenplanse vrijstelling
in het bestemmingsplan op te nemen. Daarmee kunnen bewoners van het plangebied
wat makkelijker dan voorheen in hun uitbreidingsbehoeften voorzien.
Belangrijk
verschil met de nu vaak gangbare regelingen is dat in bestemmingsplan
Noordwest, deelgebied I voor het merendeel wordt gekozen voor het werken met
bouwlagen in plaats van goothoogte. Het probleem van het aangeven van
goothoogten op de plankaart is dat deze vrijwel nooit exact kloppen met de
actuele situatie. Dit kan tot allerlei vreemde bouwwerken leiden. Daarom wordt
nu gekozen voor het op de plankaart aangeven van een maximaal aantal bouwlagen,
waarbij in de begripsomschrijving een maximale hoogte voor een bouwlaag op 3.50
meter is gesteld. Boven op deze bouwlagen is altijd een kap toegestaan, met
uitzondering van de bouwblokken die op de plankaart de aanduiding * hebben:
hierop is geen kap toegestaan. In die situatie is een uitbreiding van het
bestaande bouwvolume in relatie tot de omgeving of in verband met de
architectuur niet gewenst.
De
kap moet passen binnen het “denkbeeldige” kapprofiel met hellingshoeken van 550
en een maximale nokhoogte van 4.50 meter. In de voorschriften wordt een
vrijstelling opgenomen, inhoudende dat de helling tot maximaal 700
mag toenemen, indien dit vanuit stedebouwkundige of welstandsoverwegingen
gewenst is, bijvoorbeeld als naastgelegen dakopbouwen zijn gerealiseerd met een
helling van meer dan 550. Toevoegingen aan de kap die passen binnen
dit denkbeeldige profiel zijn in het bestemmingsplan zonder meer toegestaan,
dus ook de ‘rechte’ opbouwen. Het denkbeeldige profiel van de kap beschermt
omwonenden tegen onnodige hinder, omdat eventuele aan- of opbouwen ten opzichte
van voor- en achtergevel altijd naar achteren zijn geplaatst. Ingrepen die
buiten dit profiel vallen zijn onder te verdelen in dakkapellen en dakopbouwen.
Een
dakkapel wordt in het
bestemmingsplan gedefinieerd als een “toevoeging aan het dakvlak dat niet meer
dan een derde van het dakvlak bestrijkt”.
Hiermee
wordt in bestemmingsplan Noordwest gekozen voor het vastleggen van maximale
volumebepalingen, maar worden uitspraken over positie van de dakkapel in het
dakvlak achterwege gelaten. Dit is een taak van Welstand; in het nog op te
stellen welstandsbeleid moeten hiervoor duidelijke richtlijnen worden
geformuleerd.
Een
dakopbouw wordt in het
bestemmingsplan gedefinieerd als een “geheel of gedeeltelijk toegevoegde
woonlaag op een gebouw door optrekking van de achtergevel waarbij de hoogte van
de opbouw onder de noklijn van de kap is gelegen”. Ook in de
begripsomschrijving van een dakopbouw worden dus alleen volumebepalingen
opgenomen.
|
|
Een
tweede belangrijk verschil met de huidige regelingen is dat er in het plangebied verschillende
categorieën blokken worden onderscheiden (zie afbeelding 8). Niet voor iedere
woning geldt dus dezelfde regeling. Dit heeft te maken met de onderlinge
verschillen in wat toelaatbaar wordt geacht. In het Westerkwartier is
bijvoorbeeld nu al sprake van een grote diversiteit in op- en aanbouwen. In
veel gevallen kan hier daarom wat soepeler worden omgegaan met nieuwe aan- en
uitbouwen zonder de beeldkwaliteit van de omgeving aan te tasten. Deze
blokken vallen in de nieuwe regeling onder de categorie A. Een tweede
categorie B omvat straten waar nu nog sprake is van een zekere uniformiteit
in het straatbeeld, zoals in de Hof van Delft en het Agnetapark. Ook
bebouwing langs beeldbepalende routes als de Buitenwatersloot en Spoorsingel
vallen onder deze tweede categorie. Niet zozeer omdat hier ook sprake is van
uniformiteit in het straatbeeld, maar omdat de gemeente toevoegingen aan de
woning, gezien de positie van de straten in de stedebouwkundige structuur van
de stad, zo beter kan toetsen aan
passendheid in het stedebouwkundig beeld.
|
Afbeelding
8
Dakkapellen
die voldoen aan bovengenoemde begripsomschrijving worden in het bestemmingsplan
zonder meer toegestaan aan de achterzijde
(=tuinzijde) van de woning. Deze bouwwerken zullen overigens in de nieuwe
Woningwet vergunningsvrij worden. Aan de voorzijde van de woning
(=straatzijde) is de plaatsing van een dakkapel in de categorie A eveneens
toegestaan mits de afstand tussen de tegenoverliggende voorgevel 7,5 meter of
meer is.
In
categorie B is een dakkapel alleen toegestaan aan de voorzijde van de woning
via een binnenplanse vrijstelling. Hierbij wordt getoetst aan passendheid van
de dakkapel in het straatbeeld. Verder ligt er een belangrijke taak bij de
gemeente om het welstandsbeleid te definiëren omdat dit het enige
sturingsmiddel wordt t.a.v. vormgeving en positionering van de dakkapellen.
Een
toevoeging aan een bestaande kap of een geheel nieuwe kap vallend binnen het
eerder geformuleerde denkbeeldige profiel past binnen de
bestemmingsplanregeling en kan dus zonder meer worden gerealiseerd. In veel
gevallen is in de huidige regeling hierbuiten niets mogelijk zonder het volgen
van een vrijstellingsprocedure als bedoeld in artikel 19 van de Wet op de
Ruimtelijke Ordening. In het nieuwe bestemmingsplan worden dakopbouwen in de
vorm van het optrekken van de achtergevel wel mogelijk gemaakt via een
binnenplanse vrijstelling. Hierbij worden verschillende voorwaarden
geformuleerd. In de categorie A-gebieden wordt de dakopbouw getoetst aan
criteria als licht en lucht, privacy e.d. om ervoor te zorgen dat de opbouw de
gebruiksmogelijkheden van aangrenzende percelen niet onevenredig vermindert. In
categorie B-gebieden wordt daarnaast ook getoetst aan de stedebouwkundige
inpassing van een opbouw.
In
geval van een dakterras wordt onderscheid gemaakt in 2 soorten dakterrassen. De
eerste categorie zijn de dakterrassen op het hoofdgebouw; deze vallen in de
bestemming “woondoeleinden” en “gemengde doeleinden” en zijn in de
voorschriften daar geregeld. Ook hiervoor wordt het eerder genoemde
‘denkbeeldige’ kapprofiel als uitgangspunt genomen. Een dakterras wordt in het
bestemmingsplan toegestaan, wanneer de afscheiding van het dakterras binnen dit
profiel valt. Is dat niet het geval, dan is de ingreep alleen toe te staan
middels een binnenplanse vrijstelling. Vooral omdat omwonenden een dakterras
als nadelig ervaren, vanwege uitzicht van het terras op hun terrein, speelt
behoud van privacy bij de toetsing een doorslaggevende rol. Voordeel van een
binnenplanse vrijstelling is dat het bouwplan ter inzage wordt gelegd en er zo
voor omwonenden de kans ontstaat eventuele bezwaren kenbaar te maken.
De
tweede categorie dakterrassen betreft dakterrassen op aan- en uitbouwen van de
begane grondlaag van de woning. Deze vallen binnen de bestemming “tuin”. Voor
deze dakterrassen is opgenomen dat de afscheiding van het dakterras tenminste 1
meter uit de erfgrens moet worden gerealiseerd. Op die manier wordt voorkomen
dat buren hinder ondervinden van het dakterras, omdat vanaf het dakterras
rechtstreeks in hun tuin kan worden gekeken. Alleen indien op de erfgrens
sprake is van bebouwing aan weerszijden (ook bij de naastgelegen woning is
sprake van een uitbouw), hoeft aan deze 1 meter-eis niet te worden voldaan. De
maximale diepte van het dakterras wordt gesteld op 2,5 meter, overeenkomstig de
diepte die is toegestaan voor uitbouwen. Bij diepere dakterrassen kan er sprake
zijn van schending van privacy, omdat gebruikers van het dakterras makkelijk de
aangrenzende woning in kunnen kijken. Omdat dit per situatie erg verschillend
is, is besloten tot het opnemen van een binnenplanse vrijstelling, waarmee een
dakterras dieper mag zijn dan 2,5 meter, zolang voldaan wordt aan de
gebruikelijke voorwaarden (bescherming van privacy, inkijk, bezonning e.d. en
in geval van categorie B stedebouwkundige inpasbaarheid).


Afbeelding 9 Overzicht mogelijkheden dakopbouw en
dakterras
VIII. Overleg en inspraak
Basis
voor het bestemmingsplan Noordwest is de Startnota bestemmingsplan Noordwest,
deelgebied 1 geweest. Op 12 april, 13 april en 19 april 1999 zijn informatieavonden
gehouden over het nieuwe bestemmingsplan. Tijdens die avonden is het concept
“Startnota bestemmingsplan Noordwest, deelgebied 1” besproken met de bewoners
van het plangebied. In de Startnota zijn beleid, concrete
bebouwingsmogelijkheden en procedure opgenomen. De concept-Startnota heeft ter
inzage gelegen in de periode van 6 april tot 27 april 1999. Er zijn drie
schriftelijke reacties binnengekomen. Reacties van bewoners op de concept
Startnota tijdens de bewonersavonden zijn verwerkt in de definitieve Startnota.
In
het kader van de gemeentelijke inspraakverordening heeft het voorontwerp
bestemmingsplan vanaf 26 maart 2001 gedurende 4 weken ter inzage gelegen. Een
ieder is in de gelegenheid gesteld, schriftelijk reacties kenbaar te maken.
Tevens is op 9 april 2001 een inspraakbijeenkomst gehouden. Van deze
bijeenkomst is verslag gemaakt. De ter inzagelegging heeft geresulteerd in reacties, welke in een separate bijlage
“Notitie Maatschappelijk Overleg” zijn samengevat en van commentaar voorzien.
Het bestemmingsplan is - waar nodig - naar aanleiding van deze reacties
aangepast.
Ingevolge
artikel 10 van het Besluit op de ruimtelijke ordening is het voorontwerp
bestemmingplan om overleg toegezonden aan de volgende instanties:
Van
de in het overleg ex artikel 10 Bro betrokken instanties hebben de instanties
als genoemd onder 13 t/m 15 geen reactie gegeven op het
voorontwerp-bestemmingsplan. De instanties genoemd onder 9 t/m 12 hebben niet
inhoudelijk op het plan gereageerd.
De
verwerking van de inspraak- en overlegreacties hebben meer tijd genomen dan
gebruikelijk omdat de reacties aanleiding gaven tot het opstellen het nieuw
beleid over de wijze waarop de gemeente Delft bedrijven in bestemmingsplannen
opneemt en over handhaving van bestemmingsplanvoorschriften. Voorts is het
bestemmingsplan
aangepast aan de komende wijziging van de Woningwet.
1. PPC
(A)
Aanbevolgen wordt binnenkort de voorontwerp-bestemmingsplannen voor de
deelgebieden 2en 3 toe te sturen.
Antwoord
De voorontwerp-bestemmingsplannen zijn nog niet
gereed. Zodra de voorontwerpen gereed zijn voor vooroverleg worden de plannen
toegestuurd.
1.2 Opmerking
(G2)
Verzocht wordt om een motivering waarom gebied direct grenzend aan spoorzone
niet wordt meegenomen in het bestemmingsplan Spoorzone dat ook op korte termijn
in procedure zal worden gebracht.
In het plangebied Spoorzone moeten ontwikkelingen
mogelijk gemaakt worden die deels wel maar voor een groot deel nog niet zijn
uitgekristaliseerd. Dit betekent dat er een ander soort bestemmingsplan nodig
zal zijn dan voor het plangebied Noordwest, deelgebied 1 dat overwegend
conserverend van aard is. Voor de het plangebied Spoorzone zal een globaal plan
worden opgesteld terwijl voor het plangebied Noordwest, deelgebeid 1 een
gedetailleerd plan nodig is geacht. De begrenzing van het plangebied is zo
gekozen dat de planonderdelen die betrokken zullen worden bij het Spoorzone
project in dat plangebied zijn opgenomen, de overige plandelen zijn
ondergebracht in het bestemmingsplan Noordwest, deelgebied 1.
Het bestemmingsplan Noordwest anticipeert overigens
wel op het bestemmingsplan Spoorzone door aan de randen waar in de toekomst het
spoorplan zal worden gerealiseerd de bestemming gemengde doeleinden op te
nemen.
(G2)
Gevraagd wordt om een
beeldkwaliteitsplan te ontwikkelen voor het Agnetapark, op de plankaart
aanduidingen op te nemen van de historisch (stede-) bouwkundige waarden van het
Agnetapark en in de voorschriften ook voor het groen in het Agnetapark een
aanlegvergunning op te nemen.
Antwoord
De aanlegvoorschriften worden ook van toepassing op
het groen in het Agnetapark. Er wordt voor het gehele gemeentelijk grondgebied
een welstandsnota gemaakt waarin de criteria voor welstandstoetsing per gebied
zijn vastgelegd. De nota wordt in gedeelten in procedure gebracht waarbij na de
nota beeldregie Binnenstad gestart wordt met het deelgebied Noordwest. Ook het
Agnetapark krijgt eigen criteria afgestemd op het historische karakter van dit
wijkje.
1.4 Opmerking
(G2)
Verzocht wordt om in verband met het toepassen van vrijstellingsbepalingen ten
aanzien van bouwen alsnog een welstandsregeling ter toetsing aan te bieden ten
behoeve van bouwplannen in cultuurhistorisch waardevolle gebieden en deze
gelijktijdig met bestemmingsplan vast te stellen.
Antwoord
Gestreefd wordt de
welstandsnota gelijktijdig met het bestemmingsplan vast te stellen. Mocht dit
niet lukken dan zal tot vaststellen van de welstandsnota geanticipeerd worden
op de conceptnota welstand voor dit deelgebied.
(A)
Geadviseerd wordt om bij de vaststelling van het plan expliciet aan te geven
dat de grens van de zone industriegeluid verlegd wordt zoals op de plankaart
aangegeven en daarbij in plaats van de aanduiding “50 dB (A)-contour DSM Gist “
te spreken van “grens zone als bedoeld in artikel 53 van de Wet geluidhinder
van industrieterrein DSM-Gist en Calvé.
Antwoord
Deze
aanbeveling wordt overgenomen.
1.10 Opmerking
(G2)
De gemeente dient zijn stelling dat het bestemmingsplan geen instrument is om
de parkeerdruk in de wijk op te lossen cijfermatig te onderbouwen.
In de toelichting op het bestemmingsplan is deze
onderbouwing opgenomen.
(G2)
In de wijzigingsbevoegdheden van de voorschriften dient opgenomen te worden een
buurtgericht verkeerskundig onderzoek waarin aandacht is besteed aan ligging
van de voorziening ten opzichte van openbaar vervoer, ontsluiting voor fiets en
fietsenstalling, aansluiting op ontsluitingswegen en het effect op de
parkeerdruk in de buurt.
Antwoord
Binnen de gemeente Delft is het steeds gebruikelijk
dat bij bouwplannen van enige opvang zoals in dit bestemmingsplan mogelijk
gemaakt middels de wijzigingsbevoegdheden, een dergelijk onderzoek plaatsvindt.
Dit gebruik, dat overigens ook geregeld is in de Bouwverordening, is opgenomen
in de voorschriften behorende bij de wijzigingsbevoegdheden.
(G1)
De breedte van de boezemwaterkeringen aan weerszijden van de Buitenwatersloot
zoals aangegeven op de plankaart, dienen wat betreft primaire bestemming in overeenstemming
te worden gebracht met de zonering van de legger: “Binnenwaterkeringen,
landscheidingen, boezem en polderkade en waterscheidingen” van het
Hoogheemraadschap van Delft. Daarnaast dient in de voorschriften opgenomen te
worden dat voor werken binnen de waterkering vergunning is vereist van het
Hoogheemraadschap.
Antwoord
Het bestemmingsplan is aangepast aan voornoemde
opmerking.
1.13 Opmerking
(G1)
De gemeente dient aan te geven hoe en op welke manier afdoende berging van
water gevonden kan worden, hetzij in dan wel buiten het plangebied.
Antwoord
In de aangepaste waterparagraaf wordt uitvoering
ingegaan op alle aspecten van “water” in dit plangebied, waaronder de berging.
Voor beantwoording wordt naar deze paragraaf, opgenomen op pagina 32 van de
toelichting, verwezen. Het plangebied is een bestaande woonwijk waarin
nauwelijks wordt geherstructureerd. In het plangebied zelf kan daarom niet aan
de nieuwe eisen voor waterberging worden voldaan. Er wordt binnen het
uitvoeringsverband van de beleidsnota Waterplan Delft “Een blauw netwerk” een analyse uitgevoerd van de
oppervlaktewatersystemen in Delft. Een van de doelstellingen is het in kaart
brengen van de bergingsbehoefte en de mogelijkheid voor het realiseren van
extra berging.
1.14 Opmerking
(G1)
In het plan dient informatie opgenomen te worden over de breedte van de
leidingen en deze dient conform de Nota Planbeoordeling verwerkt te worden op
de plankaart.
Antwoord
Aan deze opmerking wordt tegemoet gekomen.
1.15 Opmerking
(G2)
Ten aanzien van de uitbreiding van de Albert Heijn voorziening wordt
geadviseerd om in de voorschriften vast te leggen dat indien de uitbreiding van
Albert Heijn meer dan 1000 m² bedraagt advies aan de stuurgroep REO gevraagd
wordt.
Antwoord
In de voorschriften wordt
een beperking verbonden aan de uitbreiding van Albert Heijn zodat uitbreiding
met meer dan 1000m² niet mogelijk wordt gemaakt.
2. Hoogheemraadschap
van Delfland
2.1
Opmerking
De
breedte van de waterkeringen komt niet overal overeen met de kernzone zoals
beschreven in de legger ”Binnenwaterkeringen, landscheidingen, boezem-,
polderkaden en waterscheidingen” van het Hoogheemraadschap van Delfland. Om de
plankaart in overeenstemming te brengen dient de strook primair waterkering een
breedte te krijgen van 7m uit de buitenkruitlijn. Verzocht wordt om dit aan te
passen.
Op
pagina 28 van het plan wordt gesproken van over een schotbalkkering in de
Buitenwatersloot. Voor Delfland is dit waterstaatkundig niet van belang en
behoeft dan ook niet bestemd te worden.
De schotbalkering in de Buitenwatersloot is
volledigheidhalve genoemd in de Toelichting op het bestemmingsplan. De
schotbalkering is niet op de plankaart en de voorschriften van het
bestemmingsplan opgenomen en derhalve niet als zodanig bestemd.
2.3
Opmerking
In
artikel 18 van de Voorschriften wordt gesproken over “dijk en waterkering”.
Vanwege een eenduidige begripsaanduiding wordt verzocht te spreken over
“kaden”.
Antwoord
Wellicht is de term “kaden” voor het waterschap een
eenduidige term. Bestemmingsplan technisch bergt de term : “kaden” meerdere gebruiksmogelijkheden in zich
waaronder bv de mogelijkheid voor transport en opslag. Juist om misverstanden
te voorkomen is daarom in het bestemmingsplan, gelijk in alle andere
bestemmingsplannen in de gemeente Delft, gekozen voor de term “waterkering”.
Door aan de betreffende gronden primair de bestemming waterkering toe te kennen
wordt maximaal rekening gehouden met water.
2.4
Opmerking
In
datzelfde artikel worden de gronden bestemd voor kaden tevens bestemd voor
andere doeleinden verkeer, woondoeleinden, gemengde doeleinden e.d. Het
Hoogheemraadschap heeft geen bezwaar tegen een dubbelbestemming maar verzoekt
aan de kaden de primaire bestemming toe te kennen.
Voor zover sprake is van een dubbelbestemming wordt
aan de functie “waterkering” een primaire bestemming gegeven. In het
voorontwerp was alleen sprake van een dubbelbestemming met Verkeersdoeleinden
en Kabel- en leidingentracé. Naar aanleiding van opmerking 2.1 zal in het
ontwerp bestemmingsplan ook sprake zijn van een dubbelbestemming met andere
bestemmingen. De voorschriften worden hierop zodanig aangepast, dat de functie
waterkering de primaire bestemming heeft.
2.5
Opmerking
Voorgesteld
wordt om artikel 18 lid 3 "bouwvoorschriften" aan te passen
overeenkomstig het onderstaand tekstvoorstel, te weten: “gronden waaraan de in
lid 1 bedoelde bestemming is gegeven mogen in beginsel uitsluitend bebouwd
worden met bouwwerken, geen gebouwen zijnde, ten behoeve van een met de waterkering
verbonden functie. Ingeval men toch wil bouwen of inrichten, dan geldt dat de
belangen van de waterkeringen niet geschaad mogen worden en nadat burgemeester
en wethouder bij de beheerder van de waterkering schriftelijk advies hebben
ingewonnen”.
Verder
dient duidelijk te zijn dat de beheerders- en werkzaamheden aan de waterkering
uitgevoerd moeten kunnen worden zonder dat een aanlegvergunning van de gemeente
vereist is.
Een aanlegvergunning van de
gemeente voor het uitvoeren van werken aan de waterkering is alleen vereist
indien het bestemmingsplan dat voorschrijft. Een dergelijke aanlegvergunning is
niet vastgelegd in de voorschriften en dus niet nodig.
De bouwvoorschriften zijn
conform de strekking van het voorstel aangepast.
2.6
Opmerking
Opgemerkt
wordt dat de uitvoering van de werken binnen de voor waterkering bestemde
gronden, onverminderd de bepalingen van het bestemmingsplan, vergunning van het
Hoogheemraadschap van Delfland is vereist.
2.7
Opmerking
Verzocht
wordt om al het mogelijke te doen om het wateroppervlak in dit gebied uit te
breiden of elders een overloopgebied te vinden wat ten tijde van een calamiteit
kan worden gebruikt als berging. Uitgangspunt daarbij dient de beleidslijn te
zijn: eerst vasthouden daarna bergen. De aanwezigheid van voldoende
oppervlaktewater komt de waterkwaliteit en de ecologische waarde ten goede en
ook voor lozingen vanuit het rioolstelsel is het noodzakelijk dat oppervlakte
water in voldoende mate aanwezig is.
In het bestemmingsplan is
al het aanwezige oppervlaktewater ook als zodanig bestemd, om in ieder geval
een afname van het oppervlaktewater te voorkomen. Echter, de mogelijkheden om
oppervlaktewater binnen het plangebied uit te breiden zijn zeer klein, gezien
de hoge bebouwingsdichtheid in het plangebied en het conserverende karakter van
het bestemmingsplan.
2.8
Opmerking
Verzocht
wordt om het poldergemaal aan de Donker Curtiusstraat de bestemming
“waterstaatswerk, poldergemaal” te geven.
De bestemmingen
waterstaatswerk/poldergemaal valt onder de bestemming Nutsvoorziening. Het
voorstel van het Hoogheemraadschap betekent een sterke differentiatie van die
bestemming. Uitgangspunt van het bestemmingsplan Noordwest is een uniformering
en vereenvoudiging van regelgeving. Een differentiatie van bestemmingen wordt
daarom alleen overwogen indien het doel van die differentiatie niet op een
andere manier bereikt kan worden. De waterstaatkundige werken/poldergemalen
zijn in eigendom van het Hoogheemraadschap en het Hoogheemraadschap beschikt
daarmee over voldoende mogelijkheden om desgewenst te voorkomen dat de
waterstaatkundige werken/gemalen voor andere nutsdoeleinden worden gebruikt.
Vooralsnog is de gemeente er niet van overtuigd dat de voorgestelde differentiatie
noodzakelijk is.
3. Vrouwen Advies Commissie
3.1
Opmerking
De
VAC gaat in grote lijnen akkoord met het bestemmingsplan. De volgende punten
worden als positief ervaren:
- Het aanwijzen van een groot aantal gebieden als
verblijfsgebied met als consequentie het bestemmen van deze gebieden als 30
km/u-zones.
- Het conserverend beleid.
- Het behoud van het Agnetapark en
omgeving.
- De diversiteit van woningen in het
gebied.
De
volgende punten worden als negatief ervaren:
- Weinig groen en weinig water.
- Weinig speelplekken.
De geconstateerde negatieve
punten zijn bekend. Het plangebied bestaat echter merendeels uit bestaande
bebouwing. De mogelijkheden om groen, water en veilige speelplekken toe te
voegen, zijn daarom beperkt.
3.2
Opmerking
De
panden Ruys de Beerenbrouckplein 5 en Hof van Delftlaan 2 hebben de bestemming
wonen gekregen terwijl er respectievelijk een makelaar (Roest staalduinen) en
een financieel adviseur (FDC) zijn gehuisvest.
De Hof van Delftlaan 2 is inderdaad al jaren in
gebruik als kantoor. Het bestemmingsplan zal op dit punt worden aangepast. Voor
het pand aan de Ruys de Beerenbrouckplein 5 geldt dat het pand slechts
gedeeltelijk in gebruik is als kantoor. In
de doeleindenomschrijving van de bestemming wonen is geregeld dat andere
functies zijn toegelaten mits de bestemming wonen in overwegende mate blijft
gehandhaafd. Dit is het geval.
Er wordt door de gemeente op toegezien dat dit ook in
de toekomst zo blijft.
3.3
Opmerking
De
VAC beveelt aan om fietsroutes Hof van Delftlaan en de Krakeelpolderweg rood te
asfalteren.
Het al dan niet in rood asfalt uitvoeren van
fietsroutes wordt niet in het bestemmingsplan geregeld. In de toelichting zijn
de fietsroutes als aanvullende informatie wel opgenomen, maar ze vallen binnen
de bestemming Verkeersdoeleinden I of II.
3.4
Opmerking
De
VAC beveelt aan in de herontwikkeling van de Mattheuskerk twee parkeerlagen
ondergronds te realiseren ten behoeve van bewoners van oud- en nieuwbouw en
bezoekers van de Nicolaas- en Gezellenkerk.
De Mattheuskerk is aangekocht door Vestia en de
ontwikkeling van de locatie wordt ter hand genomen door Ceres Projecten. Een
van de door de gemeente opgelegde ontwikkelingsvoorwaarden voor een
bestemmingsplanwijziging is dat voorzien wordt in voldoende parkeerbehoefte op
eigen terrein en dat openbare parkeerplaatsen worden gecompenseerd. De
parkeerproblematiek in deze buurt is bekend. Hiermee zal bij de beoordeling van
de plannen dan ook rekening worden gehouden. Of het mogelijk is op deze locatie
extra parkeerplaatsen te realiseren, hangt af van verdere planvorming en
beschikbare middelen.
3.5
Opmerking
Het
Grotius College is niet opgenomen in het bestemmingsplan. Evenmin is aangegeven
onder welk bestemmingsplan het valt.
Antwoord
Gezien de ligging van het Grotius College en de te
verwachten veranderingen in de directe omgeving in het kader van het
Spoorzone-project is besloten het terrein van het Grotius College op te nemen
in het nog op te stellen bestemmingsplan voor het Spoorzonegebied. Vooralsnog
blijft voor het Grotius daarom het bestemmingsplan Westerkwartier vigerend.
4. Kamer van Koophandel Haaglanden
4.1
Opmerking
De
indeling van het gehele gebied in 3 deelgebieden brengt met zich mee dat de
planning van de detailhandelstructuur de bestemmingsplangrenzen overschrijdt.
In toekomstige bestemmingsplannen moet dus rekening worden gehouden met hetgeen
in dit bestemmingsplan is geregeld.
Antwoord
Ongeacht de plangrenzen is er altijd sprake van de
noodzaak tot afstemming met omliggende plannen. Een bestemmingsplangrens mag
dan ook niet worden opgevat als de grens van bijvoorbeeld een verzorgingsgebied
voor detailhandel. In het detailhandelsbeleid van de gemeente wordt deze
afstemming bewaakt. Het bestemmingsplan vormt de ruimtelijke neerslag van
geformuleerd beleid.
4.2
Opmerking
Richt
zich tegen de opmerking op blz 22, dat bij het vertrek van deze specifiek
bestemde bedrijven, alleen bedrijven tot en met categorie 2 zijn toegestaan.
Dit is een onterechte inperking van het overgangsrecht van deze bedrijven. In
het verleden zijn dit soort inperkingen bij bezwaren procedures dan ook
herhaaldelijk geschrapt.
De maatbestemming zoals die voor verschillende
categorie 3 bedrijven is opgenomen, is een direct gevolg van de
milieuwetgeving. Een categorie 3-bedrijf is niet toegestaan op kleine afstand
van de functie wonen. Binnen de gemeente Delft is nieuw beleid opgesteld over
de wijze waarop bedrijven in bestemmingsplannen worden opgenomen (zie ook
antwoord 1.7 en de aangepaste toelichting, plankaart en voorschriften). In het
nieuwe beleid wordt een onderscheid gemaakt tussen categorie 3.1 bedrijven en
categorie 3.2 bedrijven. Voor dit plangebied heeft het beleid als gevolg dat
categorie 1 en 2 bedrijven zonder meer zijn toegestaan en categorie 3.1
bedrijven middels een vrijstelling. Categorie 3.2 en hoger zijn niet
toegestaan. In Noordwest, deelgebied 1 zijn drie categorie 3.2 bedrijven
aanwezig. Deze bedrijven zijn middels een maatbestemming in het plan opgenomen.
Dit betekent dat zij vervangen kunnen worden door een zelfde soort bedrijf maar
niet door een ander bedrijf vallend onder categorie 3.2.
5. B.V. Transportnet Zuid-Holland
5.1
Opmerking
Opgemerkt
wordt dat de ligging van de ondergrondse telecommunicatieverbinding niet geheel
juist staat aangegeven. Er zijn kaarten toegevoegd met de correcte ligging van
de verbinding.
Antwoord
De plankaart wordt aangepast conform de aangegeven
verbindingen.
5.2
Opmerking
Er
wordt verzocht om de TZH toe te voegen aan de lijst met overleginstanties, en om de benaming van het
elektriciteitsbedrijf Zuid-Holland te
wijzigen in E.on Benelux.
Antwoord
Dit verzoek wordt
overgenomen.
6.1
Opmerking
Het
Stadsgewest Haaglanden brengt naar voren dat in het plan genoemde
wijzigingsbevoegdheid voor realisatie voor 7000 m2 boven de te
bouwen brandweerkazerne niet past binnen het vastgestelde kantorenbeleid van
het Stadsgewest Haaglanden.
Antwoord
In de vorig jaar
vastgestelde kantorennota van Haaglanden is de locatie ‘brandweerkazerne’
opgenomen onder het kopje ”overige locaties” voor de periode na 2005. Echter,
voor de locatie Spoorzone is in de periode tot 2005 20.000 m2
opgenomen. Op dit moment ligt het niet in de lijn der verwachting dat dit
totale oppervlak in die tijdsperiode zal worden gerealiseerd, waarmee de in dit
bestemmingsplan opgenomen 7000 m2 naar voren geschoven kan worden.
7. DSM Gist B.V.
7.1
Opmerking
DSM
Gist verzoekt de lijn van de geluidscontour als opgenomen op de plankaart van
het bestemmingsplan te vergelijken met de lijn van de geluidscontour zoals
neergelegd in de laatste revisievergunning-aanvraag van de DSM in het kader van
de Wet Milieubeheer.
Antwoord
7.2 Opmerking
DSM
geeft aan ernstig bezwaar te hebben tegen de bestemming “openbaar groen” voor
het gebied ten noorden van de Meeslaan. Het terrein is als gevolg daarvan niet
te gebruiken ten behoeve van (lichte) industrie, waardoor de waarde is
verminderd.
Antwoord
In het vigerende bestemmingsplan zijn in het
groengebied aan de Meeslaan woonblokken geprojecteerd. Dit deel van het
uitbreidingsplan is echter nooit tot uitvoering gebracht. Binnen de huidige
milieuwetgeving is woonbebouwing op deze locatie ook niet meer aan de orde. De
stelling dat nu, door de bestemming van het terrein als “openbaar groen” de
mogelijkheden voor lichte industrie worden verminderd, klopt dan ook niet,
omdat het terrein die mogelijkheden nu ook niet kent. Ook omdat er vanuit de
gemeente de wens is tussen het industrieterrein en de woonwijk een zekere
buffer in stand te houden, is ervoor gekozen de locatie te bestemmen
overeenkomstig het huidige gebruik.
Inmiddels is in het overleg tussen gemeente en DSM
Gist wel gesproken over mogelijke bebouwing in de noordelijke rand van dit
groengebied, gekoppeld aan een herinrichting van het parkje (onder andere de
waterstructuur). Omdat hierover echter nog geen bestuurlijke besluitvorming
heeft plaatsgevonden, is hiervan nu wel melding gemaakt in de toelichting op
het ontwerp-bestemmingsplan, maar zijn deze mogelijke wijzigingen niet op de
plankaart opgenomen. Indien over de herontwikkeling van dit gebied in de
toekomst meer duidelijkheid is en besluitvorming heeft plaatsgevonden, kan dit
via een artikel 19-procedure worden mogelijk gemaakt.
7.3 Opmerking
DSM
wil graag nagaan of de bestemming ten behoeve van een kinderdagverblijf aan de
Meeslaan wel past binnen de wettelijke bepalingen inzake geluid, geur en
risico.
Antwoord
In de milieuparagraaf van
het bestemmingsplan wordt nagegaan of er vanuit de milieuwetgeving sprake is
van enige beperkingen t.a.v. de in het bestemmingsplan mogelijk gemaakte
ontwikkelingen, waaronder het kinderdagverblijf aan de Meeslaan. Ten aanzien
van geluid kan worden opgemerkt dat een kinderdagverblijf in het kader van de
Wet geluidhinder niet wordt aangemerkt als geluidgevoelige bestemming. Ten
aanzien van de luchtkwaliteit is eveneens in de milieuparagraaf van het
bestemmingsplan verslag gedaan van een onderzoek om te bepalen of de maximaal
toegestane grenswaarden worden overschreden. Dit is niet het geval. Tenslotte
valt de locatie van het kinderdagverblijf buiten de risicozone langs het spoor.
9. Inspecteur van de Ruimtelijke Ordening
In
het bestemmingsplan wordt een regeling voor bedrijven opgenomen die afwijkt van
de VNG werkwijze. Bij het bestemmingsplan Schie-oevers bleek deze Delftse Lijst
lastig te hanteren en is afgesproken dat voor andere bestemmingsplannen wel van
de VNG lijst wordt uitgegaan. In dit plangebied zou dit niet tot problemen
hoeven te leiden. Principe is dat bedrijven uit de VNG categorie 1 en 2
algemeen toelaatbaar worden geacht naast en tussen woningen in gemengde
gebieden
Antwoord
Verwezen wordt naar het
antwoord onder 1.7 dat in gaat op het nieuwe Delftse beleid ten aanzien van
bedrijven in bestemmingsplannen.
De door de VNG gehanteerde
Lijst van Bedrijfstypen is in aangepaste vorm overgenomen. De aanpassing
betreft een onderscheid tussen categorie 3.1 en 3.2 bedrijven. Het nieuwe
Delftse beleid heeft voor het betreffende plangebied tot gevolg dat categorie 1
en 2 bedrijven zonder meer zijn toegestaan,. Categorie 3.1 bedrijven zijn
middels een vrijstelling mogelijk gemaakt. Categorie 3.2 bedrijven en hoger
zijn niet toegestaan. De drie in het plangebied aanwezige categorie 3.2
bedrijven zijn met een maatbestemming in het bestemmingsplan opgenomen. De
toelichting, plankaarten en voorschriften zijn aangepast aan het nieuwe beleid.
Verwezen wordt ook naar de antwoorden 1.7 en 4.2 en de aangepaste versie van
het bestemmingsplan.
IX. Financiële paragraaf
In
het bestemmingsplan worden verschillende nieuwe ontwikkelingen mogelijk
gemaakt. Slechts in één van die gevallen gaat het om een gemeentelijke
ontwikkeling welke in exploitatie zal worden genomen.
De
gemeentelijke herontwikkeling betreft de huidige locatie van de
brandweerkazerne op de hoek van de Westlandseweg en Krakeelpolderweg. Op deze
locatie zal op korte termijn een nieuwe brandweerkazerne worden ontwikkeld in
combinatie met commerciële kantoorontwikkeling. In exploitatieve zin zal het
herontwikkelen van deze locatie worden bekostigd uit de opbrengsten welke
gegenereerd worden uit de commerciële kantoorontwikkeling en de reeds
beschikbaar gestelde middelen uit de gemeentebegroting. Gezien de stand van
zaken van deze ontwikkeling zijn alle kosten en baten inzichtelijk en
gegarandeerd en is door voornoemde lastendragers sprake van een sluitende
ontwikkeling.